龙湖嘉玺托斯卡纳风格经典联排别墅
-
345万
总价
-
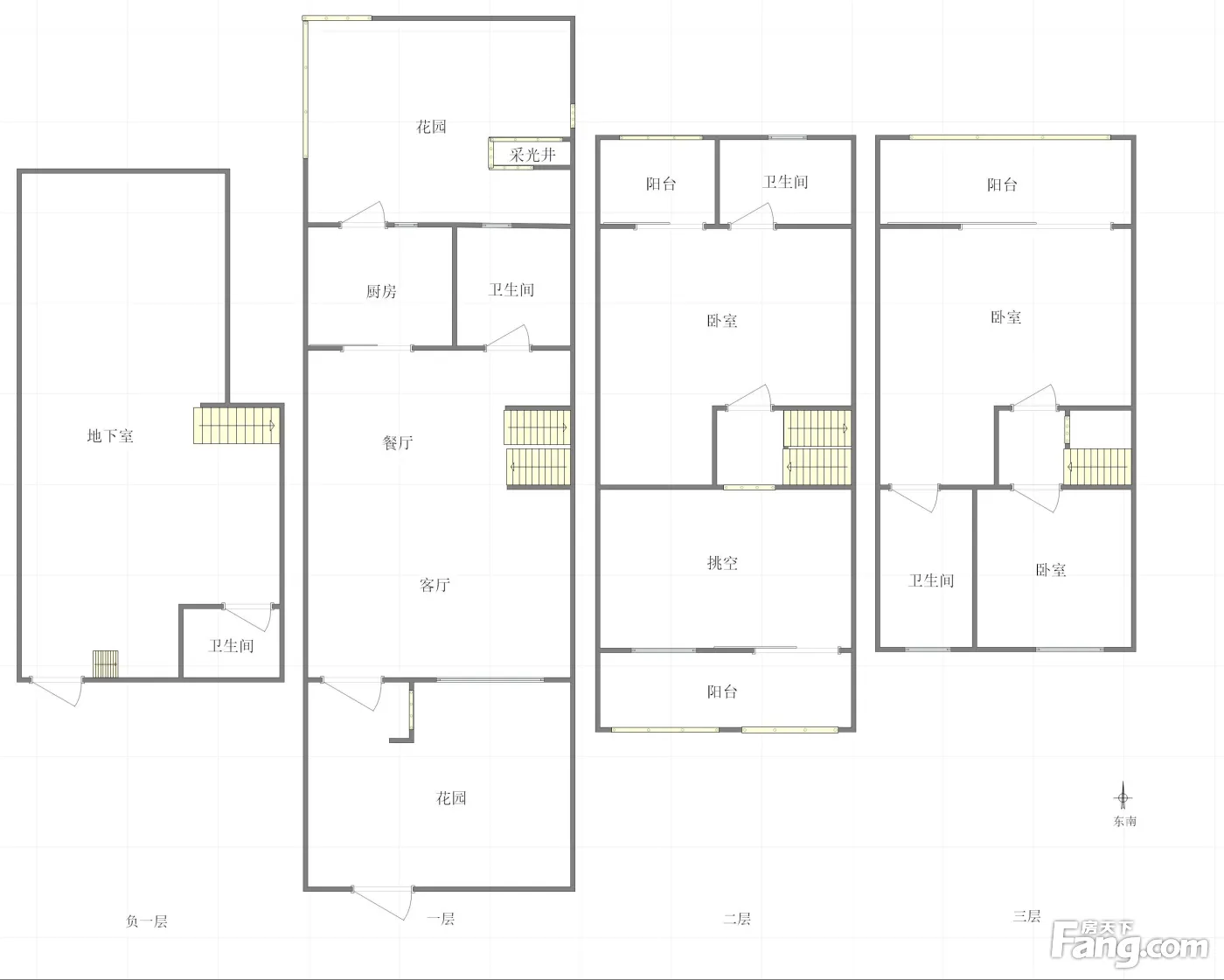
5室2厅
户型
-
217.77㎡
建筑面积
买房加房产交流群,省钱不踩雷
3000+人正在热聊
加入群聊
-
单价
15843元/平米
- 挂牌价格解析
-
楼层
3层
- 咨询楼层
-
套内
暂无数据
- 咨询套内使用面积
-
楼型
板楼
-
朝向
东南
-
装修
毛坯
-
供暖
暂无数据
-
发布
2025-09-11
-
地铁
距国博线欢乐谷约581米
-
咨询总首付
首付约104.2万
首付税费及佣金情况 -
深度测评
小区龙湖两江新宸嘉玺(两江新区-礼嘉)
-
更多
楼户比、楼层高度、交易历史、抵押信息
周边配套
地址:重庆市渝北区礼慈路38号
交通综合评分
查看全部6.3
“较好”
超过重庆52.3%的小区
-
地铁公交
9.0
-
驾车出行
9.0
猜你喜欢
同小区其它房源
户型齐全,主打户型方正,明卫,客厅朝南,双阳台五居
龙湖两江新宸嘉玺户型主要有230平-230平的户型方正,明卫,客厅朝南,双阳台的五居 、249平-249平的户型方正,客厅朝南,独立衣帽间的其他居 。
*获取完整户型报告,同时会有免费语音讲解服务
-
15391元/㎡
本月挂牌均价
-
0.85%
环比上月
买房加房产交流群,省钱不踩雷
3000+人正在热聊
加入群聊
免责声明:房源信息由网站用户提供,其真实性、合法性由信息提供者负责,最终以政府部门登记备案为准。本网站不声明或保证内容之正确性和可靠性,购买该房屋时,请谨慎核查。入学情况仅凭历史经验总结,在此不承诺升学事宜。请您在签订合同之前,切勿支付任何形式的费用,以免上当受骗。



