南山下全采光端户,装修花了700万,诚心出售
-
565万
总价
-
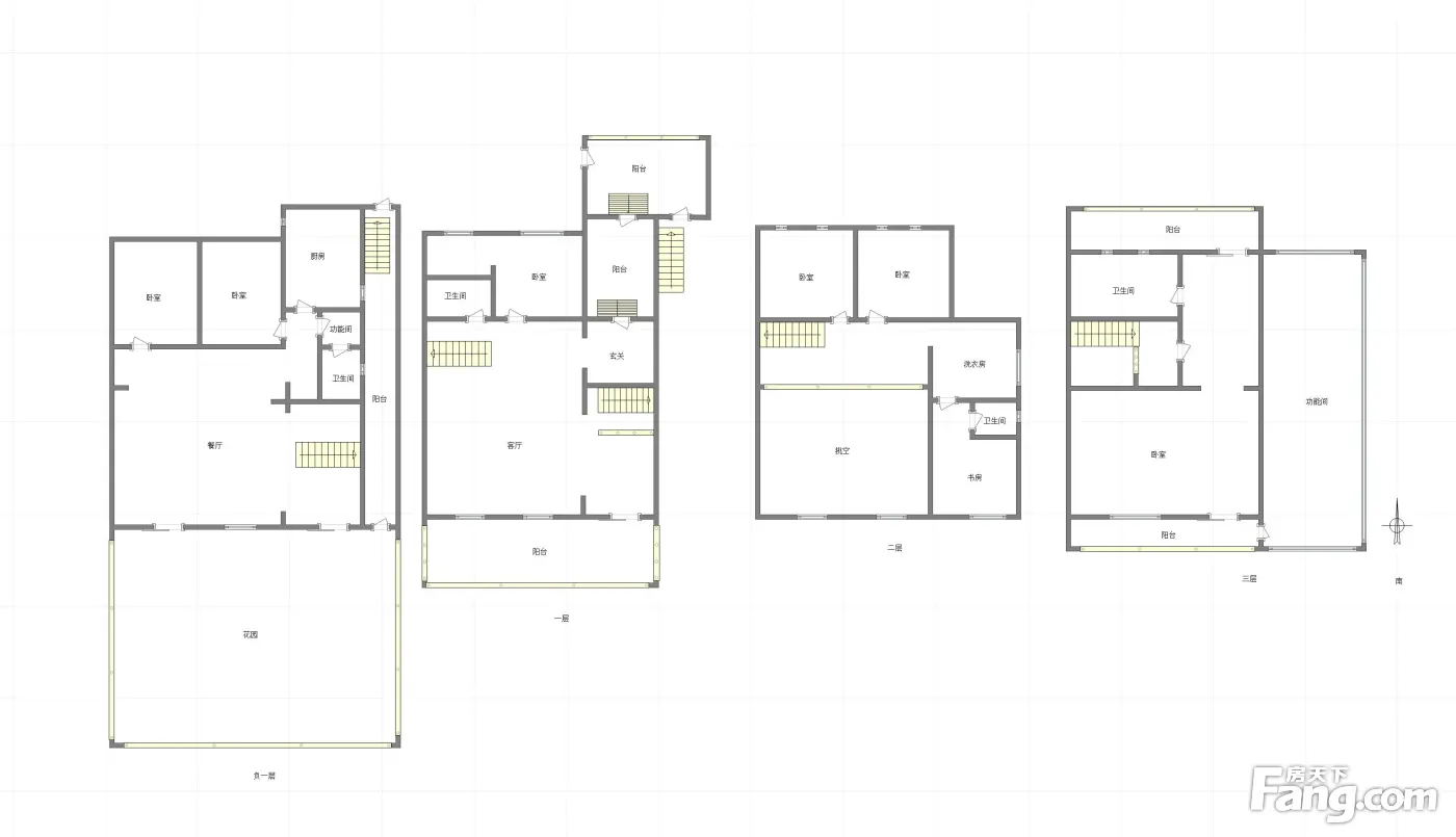
5室2厅
户型
-
234.89㎡
建筑面积
买房加房产交流群,省钱不踩雷
3000+人正在热聊
-
单价
24054元/平米
- 挂牌价格解析
-
楼层
4层
- 咨询楼层
-
套内
暂无数据
- 咨询套内使用面积
-
楼型
板楼
-
朝向
南
-
装修
精装
-
供暖
暂无数据
-
发布
2025-08-18
-
地铁
暂无数据
-
咨询总首付
首付约187.7万
首付税费及佣金情况 -
深度测评
小区庆隆南山高尔夫国际社区钻石岛(南岸-茶园新区)
-
更多
楼户比、楼层高度、交易历史、抵押信息
房源描述(2)
-
核心卖点问经纪人
相信为您推荐的这套房子您一定会满意,赶快行动吧,先到先得! 房屋年代∶null,面积∶234.69平方米,朝向∶南 1. 小区配备高端物业管理,让你享受宾至如归的服务; 2. 小区人文素质高,是您的居家的绝佳选择; 3. 小区居住安静舒适,让您拥有高品质的生活环境; 4. 小区绿化率高,绿树成荫鸟语花香让您随时呼吸到新鲜空气。
-
服务介绍问经纪人
本人何琼英从2007年开始至今从事房地产行业,二手存量房交易买卖,主要是改善型住房,花园洋房别墅,公司有大量好房源,欢迎进入我的店铺查看,欢迎随时电话咨询,以诚相待,诚信为本,为您置业安家保驾护航。
-
税费分析房贷计算
一手新房免中介费。 二手成交中介费如下: 100万以下3666元, 100万以上6666元。 购买房屋主要税费: 契税: 首套140平以下:1% ;140平以上收1.5%; 第二套140平以下1.5%,140平以上2%;’ 第三套及以上收3%(交房后地税收取)
-
核心卖点问经纪人
相信为您推荐的这套房子您一定会满意,赶快行动吧,先到先得! 房屋面积∶234.75平方米,朝向∶正南 1. 小区配备良好物业管理,让你享受宾至如归的服务; 2. 小区人文素质高,是您的居家的品质选择; 3. 小区环境安静舒适,让您拥有高品质的生活环境; 4. 小区绿化高,绿树成荫鸟语花香让您随时呼吸到新鲜空气。
周边配套
交通综合评分
查看全部超过重庆42.0%的小区
-
地铁公交
5.0
-
驾车出行
10.0
猜你喜欢
同小区其它房源
-
10074元/㎡
本月挂牌均价
-
0.73%
环比上月
买房加房产交流群,省钱不踩雷
3000+人正在热聊
- 免费咨询
- 专业服务
- 区域解读
- 户型分析



