茶园新区中国铁建万籁九歌(四期)四房142万
-
142万
总价
-
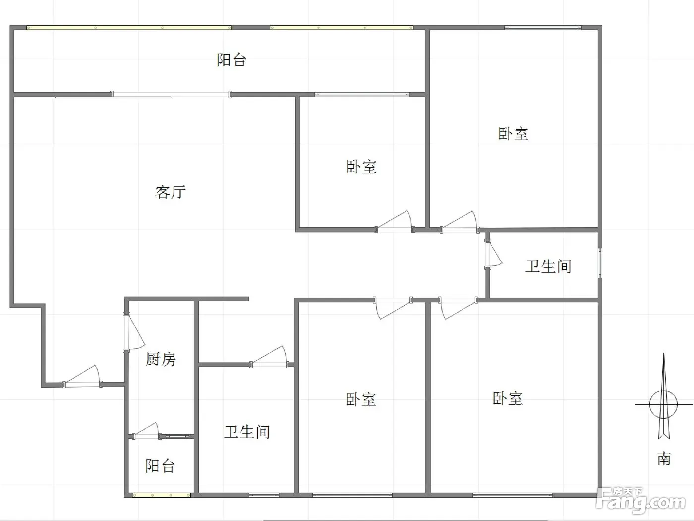
4室2厅2卫
户型
-
129.98㎡
建筑面积
买房加房产交流群,省钱不踩雷
3000+人正在热聊
加入群聊
-
单价
10924元/平米
- 挂牌价格解析
-
楼层
中楼层/7层
- 咨询楼层
-
套内
109.45㎡
- 咨询套内使用面积
-
朝向
南
-
装修
毛坯
-
年代
2019
-
发布
1900-01-01
-
地铁
暂无数据
-
咨询总首付
首付约43.3万
首付税费及佣金情况 -
深度测评
小区万国邻里荟(南岸-茶园新区)
-
更多
楼户比、楼层高度、交易历史、抵押信息
周边配套
地址:梨花大道741号
交通综合评分
查看全部6.6
“较好”
超过重庆26.8%的小区
-
地铁公交
9.0
-
驾车出行
10.0
本月均价 12799元/m²
环比上月 上涨 0.32%
同比去年 下跌 0.37%
猜你喜欢
同小区其它房源
户型齐全,主打户型方正,动静分离四居
万国邻里荟户型主要有130平-130平的户型方正,动静分离的四居 、Infinity平--Infinity平的户型方正,动静分离的三居 。
*获取完整户型报告,同时会有免费语音讲解服务
-
9983元/㎡
本月挂牌均价
-
0.19%
环比上月
买房加房产交流群,省钱不踩雷
3000+人正在热聊
加入群聊
免责声明:房源信息由网站用户提供,其真实性、合法性由信息提供者负责,最终以政府部门登记备案为准。本网站不声明或保证内容之正确性和可靠性,购买该房屋时,请谨慎核查。入学情况仅凭历史经验总结,在此不承诺升学事宜。请您在签订合同之前,切勿支付任何形式的费用,以免上当受骗。



