融创白象街 次新小区 正规两室
-
75万
总价
-
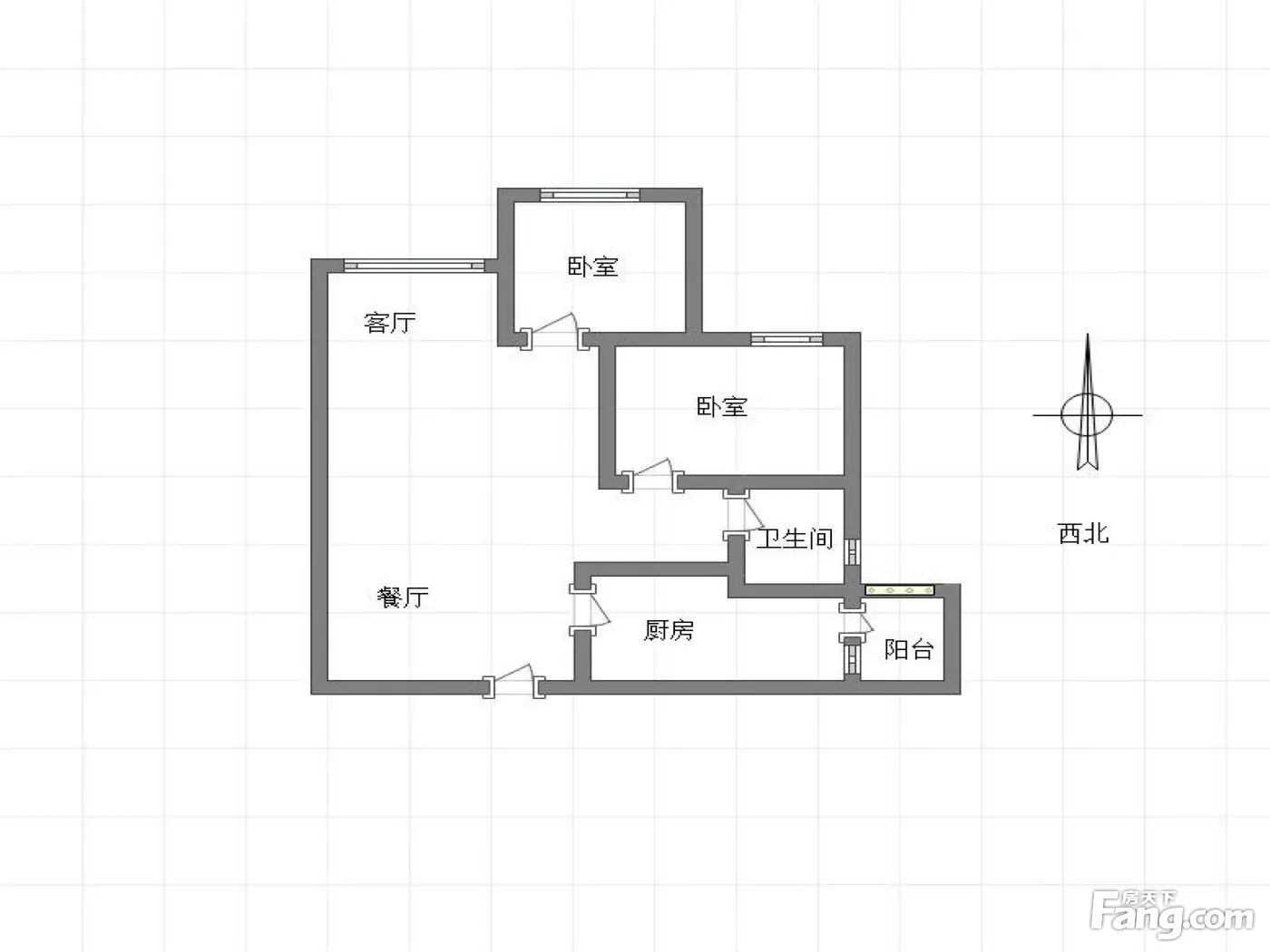
2室1厅
户型
-
58.68㎡
建筑面积
买房加房产交流群,省钱不踩雷
3000+人正在热聊
-
单价
12782元/平米
- 挂牌价格解析
-
楼层
低楼层/39层
- 咨询楼层
-
套内
46.09㎡
- 咨询套内使用面积
-
楼型
塔楼
-
朝向
东南
-
装修
毛坯
-
供暖
暂无数据
-
发布
2023-04-03
-
地铁
距2号线临江门站约685米
-
咨询总首付
首付约19.4万
首付税费及佣金情况 -
深度测评
小区融创白象街商铺(渝中-解放碑)
-
更多
楼户比、楼层高度、交易历史、抵押信息
房源描述(2)
-
核心卖点问经纪人
相信为您推荐的这套房子您一定会满意,赶快行动吧,先到先得! 房屋年代∶null,面积∶58.0平方米,朝向∶南 1. 小区配备高端物业管理,让你享受宾至如归的服务; 2. 小区人文素质高,是您的居家的绝佳选择; 3. 小区居住安静舒适,让您拥有高品质的生活环境; 4. 小区绿化率高,绿树成荫鸟语花香让您随时呼吸到新鲜空气。
-
核心卖点问经纪人
1、 地理位置优越 2、 公交地铁 方便。出行方便,上下班方便 3、 购物方便,节省您的宝贵时间 4、 小区绿化率高。环境优美。宁静和谐,好环境总会给人带来好心情 5、 房干净整洁,温馨舒适,窗明几净,就等着您的拎包入住 6、 宽敞明亮,布局大方,采光非常好
-
业主心态问经纪人
【1】业主急于出售丶经纪人全程陪同看房,全城看房 ! 【2】 我珍视每一份嘱托,不发布虚 、不虚报价格、一心一意只为圆您的买房梦! 【3】如果遇到哪里有讲解不清楚的地方,欢迎随时咨询,我都会为您一一解答,感谢信任
-
小区配套问经纪人
位置:小区地理位置佳,绿化率高,居民素质高 配套:有健身器材,小型篮球场,可供小区居民使用 车位:停车位充足,建有地上停车场和地下车库 保安:小区内24保安巡逻
-
服务介绍问经纪人
本人从事房地产多年,公司有大量好房源,欢迎进入我的店铺查看,欢迎随时电话咨询,相信我的专业,为您置业安家保驾护航。
周边配套
交通综合评分
查看全部超过重庆40.4%的小区
-
地铁公交
10.0
-
驾车出行
10.0
本月均价 24336元/m²
环比上月 上涨 2%
同比去年 上涨 2.72%
猜你喜欢
同小区其它房源
户型齐全,主打户型方正,厨卫不对门三居
融创白象街商铺户型主要有118平-215平的户型方正,厨卫不对门的三居 、148平-238平的全明格局,户型方正的四居 、215平-421平的观景落地窗,户型方正,观景飘窗,全明格局的五居 。
*获取完整户型报告,同时会有免费语音讲解服务
-
10885元/㎡
本月挂牌均价
-
1.21%
环比上月
买房加房产交流群,省钱不踩雷
3000+人正在热聊
- 免费咨询
- 专业服务
- 区域解读
- 户型分析

