巴属上2楼,出行方便,证在手,居家安静
-
110万
总价
-
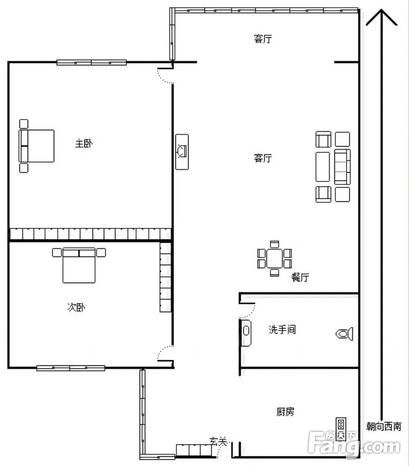
2室1厅
户型
-
62.42㎡
建筑面积
买房加房产交流群,省钱不踩雷
3000+人正在热聊
-
单价
17623元/平米
- 挂牌价格解析
-
楼层
中楼层/11层
- 咨询楼层
-
套内
暂无数据
- 咨询套内使用面积
-
楼型
板塔结合
-
朝向
东
-
装修
简装
-
供暖
暂无数据
-
发布
2025-04-04
-
地铁
距1号线七星岗站约377米
-
咨询总首付
首付约33.2万
首付税费及佣金情况 -
深度测评
小区双钢路小区(渝中-一号桥)
-
更多
楼户比、楼层高度、交易历史、抵押信息
房源描述(1)
-
核心卖点问经纪人
【该网络房源已通过帮官方核验,真实有效】 ① 【房型简介】:户型方正,无浪费使用面积,得房率极高 ② 【装修状况】:普通装修 ③ 【产权情况】:产权清晰,证在手,无抵押,无查封
-
业主心态问经纪人
1、【卖房原因】:由于房东家庭人丁兴旺,需要置换更大面积,所以挂牌出售 2、【家庭意见】:经过多次沟通,家庭意见统一,价格统一,诚意出售 3、【看房方式】:房东诚意卖房,积极配合,随时可预约看房 4、【价格预期】:价格随行就市,只要合理,价格可以商量,到价即卖
-
服务介绍问经纪人
我是浩邦地产一名资深店面经理,我会用诚信、热情、负责的服务为您找到满意的房子,用专业和实力打造一站式服务体验。一次成交,终身服务。
周边配套
交通综合评分
查看全部超过重庆33.0%的小区
-
地铁公交
10.0
-
驾车出行
10.0
本月均价 18510元/m²
环比上月 下跌 0.62%
同比去年 下跌 3.01%
猜你喜欢
同小区其它房源
-
14913元/㎡
本月挂牌均价
-
0.04%
环比上月
买房加房产交流群,省钱不踩雷
3000+人正在热聊
- 免费咨询
- 专业服务
- 区域解读
- 户型分析

