照母山精装修临崖带电梯联排别墅保养好
-
660万
总价
-
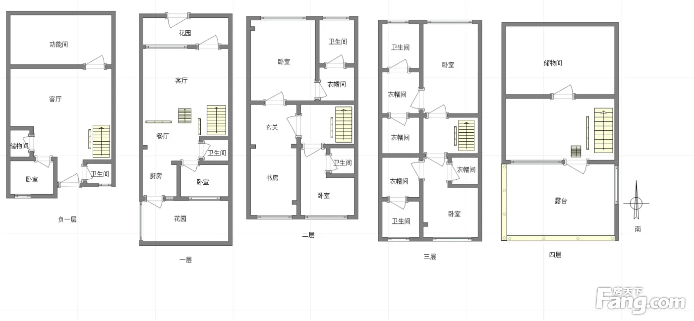
5室2厅
户型
-
247.93㎡
建筑面积
买房加房产交流群,省钱不踩雷
3000+人正在热聊
-
单价
26621元/平米
- 挂牌价格解析
-
楼层
3层
- 咨询楼层
-
套内
239.68㎡
- 咨询套内使用面积
-
楼型
板楼
-
朝向
南
-
装修
精装
-
供暖
暂无数据
-
发布
2024-02-18
-
地铁
距5号线重光站约799米
-
咨询总首付
首付约199.1万
首付税费及佣金情况 -
深度测评
小区象屿两江望府(两江新区-照母山)
-
更多
楼户比、楼层高度、交易历史、抵押信息
房源描述(2)
-
核心卖点问经纪人
相信为您推荐的这套房子您一定会满意,赶快行动吧,先到先得! 房屋年代∶null,面积∶248.0平方米,朝向∶南 1. 小区配备高端物业管理,让你享受宾至如归的服务; 2. 小区人文素质高,是您的居家的绝佳选择; 3. 小区居住安静舒适,让您拥有高品质的生活环境; 4. 小区绿化率高,绿树成荫鸟语花香让您随时呼吸到新鲜空气。
-
核心卖点问经纪人
相信为您推荐的这套房子您一定会满意,赶快行动吧,先到先得! 房屋年代∶null,面积∶248.0平方米,朝向∶南 1. 小区配备高端物业管理,让你享受宾至如归的服务; 2. 小区人文素质高,是您的居家的绝佳选择; 3. 小区居住安静舒适,让您拥有高品质的生活环境; 4. 小区绿化率高,绿树成荫鸟语花香让您随时呼吸到新鲜空气。
-
业主心态问经纪人
详情电话咨询: 到家了钟森24在线
-
小区配套问经纪人
1. 小区配备高端物业管理,让你享受宾至如归的服务; 2. 小区人文素质高,是您的居家的绝佳选择; 3. 小区居住安静舒适,让您拥有高品质的生活环境; 4. 小区绿化率高,绿树成荫鸟语花香让您随时呼吸到新鲜空气
-
服务介绍问经纪人
中介服务费:成交价100万以下3666元 中介服务费:成交价100万以上6666元 按揭服务费:商贷2000元 权证过户:2000元 公积金贷款服务费:4000元
-
税费分析房贷计算
契税:一套住房140平米以下1%, 二套房140平米以下1%,140平米以上首套2% 二套2%,三套3%
-
户型解读问经纪人
1. 小区配备高端物业管理,让你享受宾至如归的服务; 2. 小区人文素质高,是您的居家的绝佳选择; 3. 小区居住安静舒适,让您拥有高品质的生活环境; 4. 小区绿化率高,绿树成荫鸟语花香让您随时呼吸到新鲜空气。
周边配套
交通综合评分
查看全部超过重庆21.1%的小区
-
地铁公交
10.0
-
驾车出行
10.0
猜你喜欢
同小区其它房源
-
19419元/㎡
本月挂牌均价
-
0.06%
环比上月
买房加房产交流群,省钱不踩雷
3000+人正在热聊
- 免费咨询
- 专业服务
- 区域解读
- 户型分析

