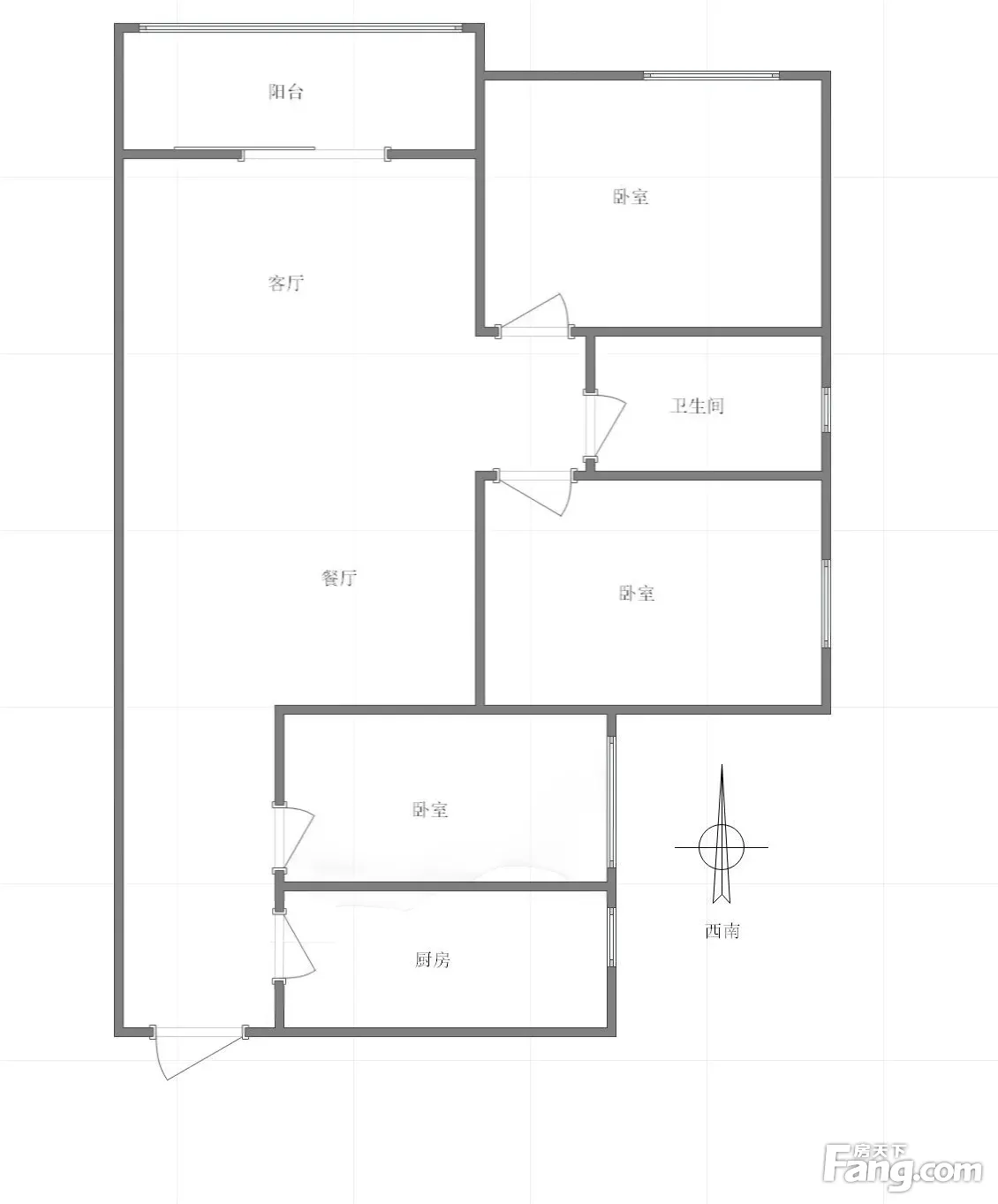
滨江路旁港企开发商新装修三房户型方正采光良好
-
89.8万
总价
-
3室1厅
户型
-
94.34㎡
建筑面积
买房加房产交流群,省钱不踩雷
3000+人正在热聊
加入群聊
-
单价
9519元/平米
- 挂牌价格解析
-
楼层
低楼层/33层
- 咨询楼层
-
套内
78.9㎡
- 咨询套内使用面积
-
楼型
板塔结合
-
朝向
西南
-
装修
精装
-
供暖
暂无数据
-
发布
2022-05-23
-
地铁
距10号线兰花路站约614米
-
咨询总首付
首付约22.6万
首付税费及佣金情况 -
深度测评
小区恒基翔龙江畔(南岸-南滨路)
-
更多
楼户比、楼层高度、交易历史、抵押信息
周边配套
地址:南滨西路28号
交通综合评分
查看全部6.3
“较好”
超过重庆75.2%的小区
-
地铁公交
9.0
-
驾车出行
9.0
本月均价 10618元/m²
环比上月 下跌 0.28%
同比去年 下跌 10.74%
猜你喜欢
同小区其它房源
户型齐全,主打明卫,明厨二居
恒基翔龙江畔户型主要有68平-119平的明卫,明厨的二居 、94平-163平的明卫,明厨,客厅朝南的三居 、137平-163平的明卫,客厅朝南,双阳台,双卧朝南,主卧朝南的四居 。
*获取完整户型报告,同时会有免费语音讲解服务
-
14073元/㎡
本月挂牌均价
-
0.01%
环比上月
买房加房产交流群,省钱不踩雷
3000+人正在热聊
加入群聊
免责声明:房源信息由网站用户提供,其真实性、合法性由信息提供者负责,最终以政府部门登记备案为准。本网站不声明或保证内容之正确性和可靠性,购买该房屋时,请谨慎核查。入学情况仅凭历史经验总结,在此不承诺升学事宜。请您在签订合同之前,切勿支付任何形式的费用,以免上当受骗。



