南坪万达协信旁 珊瑚在侧 正规2房 位置好 业主安心卖
-
28万
总价
-
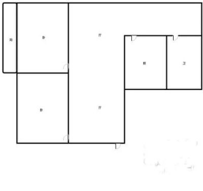
2室2厅
户型
-
68.74㎡
建筑面积
买房加房产交流群,省钱不踩雷
3000+人正在热聊
加入群聊
-
单价
4074元/平米
- 挂牌价格解析
-
楼层
高楼层/10层
- 咨询楼层
-
套内
暂无数据
- 咨询套内使用面积
-
楼型
板楼
-
朝向
东南
-
装修
简装
-
供暖
暂无数据
-
发布
2024-11-06
-
地铁
距3号线四公里站约750米
-
咨询总首付
首付约7.3万
首付税费及佣金情况 -
深度测评
小区南湖路140号小区(南岸-南坪)
-
更多
楼户比、楼层高度、交易历史、抵押信息
周边配套
地址:南坪南湖路140号
交通综合评分
查看全部7.0
“较好”
超过重庆46.3%的小区
-
地铁公交
10.0
-
驾车出行
10.0
本月均价 4740元/m²
环比上月 下跌 1.45%
同比去年 下跌 27.71%
猜你喜欢
同小区其它房源
-
8362元/㎡
本月挂牌均价
-
0.51%
环比上月
买房加房产交流群,省钱不踩雷
3000+人正在热聊
加入群聊
免责声明:房源信息由网站用户提供,其真实性、合法性由信息提供者负责,最终以政府部门登记备案为准。本网站不声明或保证内容之正确性和可靠性,购买该房屋时,请谨慎核查。入学情况仅凭历史经验总结,在此不承诺升学事宜。请您在签订合同之前,切勿支付任何形式的费用,以免上当受骗。



