电梯房+正规三房+视野好+住家安静+巴属织标在
-
260万
总价
-
3室2厅
户型
-
98.99㎡
建筑面积
买房加房产交流群,省钱不踩雷
3000+人正在热聊
-
单价
26266元/平米
- 挂牌价格解析
-
楼层
高楼层/12层
- 咨询楼层
-
套内
90.31㎡
- 咨询套内使用面积
-
朝向
东南
-
装修
精装
-
供暖
暂无数据
-
发布
2023-10-22
-
地铁
距1号线七星岗站约490米
-
咨询总首付
首付约65.5万
首付税费及佣金情况 -
深度测评
小区巴教村(渝中-一号桥)
-
更多
楼户比、楼层高度、交易历史、抵押信息
房源描述(3)
-
核心卖点问经纪人
**** 本房源位于渝中区解放碑核心地段巴教村,地理位置优越,生活配套成熟。房屋为南向精装修三居室,建筑面积98.99平方米,户型布局合理,包含3室2厅1卫1厨1阳台,满足家庭多样化居住需求。顶层设计带来开阔视野,采光通风俱佳,居住舒适度高。 小区建于1996年,总楼层10层,本房源位于顶层,兼具安静与视野优势。解放碑商圈近在咫尺,周边商业、交通、医疗等配套齐全,生活便利。房源总价270万,单价27275元/平,性价比突出,是渝中核心区稀缺的优质住宅选择。
-
核心卖点问经纪人
房屋介绍标准的3室2厅1卫(可参看户型图),全明格局。此房自从业主买后从未住过,相当于二手房的价格买了新房! 适合人群注重生活品质,享受生活,作风低调的成功人士;适合家庭:三口之家,三代同堂。 购买理由1。楼层虽低但无遮挡采光非常好 2。业主已做好随时出手准备,价格优势很大,投资也是相当不错的选择!3。买后从未住过,二手房的价格买新房。4.中央空调入户无外挂机。 选择我的理由1.不与业主站在一边搞双簧,坚决和我的客户同仇敌忾2..不胡乱分析市场促成交易,尽量让客户理性判断3.不过多电话造成生活干扰,合理安排时间进行服务4.不单纯只为成交而做成交,把可能存在的各种风险规避到底! 看见我的帖子是咱们的缘分,我会用我百分之百的努力为您服务,也希望您相信我的实力!本人为 资深置业顾问, 致力于提供专业的二手房服务!
-
业主心态问经纪人
房东置换,诚心出售,价格可以再谈,欢迎看房,随时恭候。
-
小区配套问经纪人
位置:小区地理位置佳,绿化率高,居民素质高 配套:有健身器材,小型篮球场,可供小区居民使用 车位:停车位充足,建有地上停车场和地下车库 保安:小区内24保安巡逻
-
服务介绍问经纪人
本人从事房地产多年,公司有大量好房源,欢迎进入我的店铺查看,欢迎随时电话咨询,相信我的专业,为您置业安家保驾护航。
-
核心卖点问经纪人
本房源位于渝中区核心地段解放碑巴教村,1996年建成的住宅小区,总高12层,本房为高层南向户型,采光通风俱佳。房屋建筑面积98.99平方米,精装修三室两厅一卫一厨一阳台布局,空间利用率高,功能分区明确,满足家庭多样化居住需求。 该房产满五,产权清晰,交易税费低,总价260万,折合单价仅26265元/平方米,性价比突出。解放碑商圈配套成熟,交通便捷,生活便利,是自住或长期持有的优质选择。房屋保养良好,拎包即可入住,省去装修烦恼。
-
业主心态问经纪人
业主注重居住环境,要求物业服务高效、安保到位、设施完好;重视隐私与安全;希望邻里和谐又有私人空间;关注小区规划,要求知情权与参与权;对费用支出期望账目透明、物有所值 ,以求安居乐业。
-
小区配套问经纪人
内部配套:有休闲广场、花园,可供休憩赏景;健身区配备多样器材,还有球类场地;专设儿童游乐区;物业服务专业,保障安全与整洁。 周边配套:交通便利,公交、地铁俱全,驾车出行畅达;资源丰富,幼、小、都有;医疗配套完善,社区卫生服务中心近,大医院不远;商业发达,购物中心汇聚购物、餐饮、娱乐,还有菜市场与超市。
-
服务介绍问经纪人
服务涵盖:依预算、户型、朝向、配套需求精准荐房; 陪看讲解,凸显房屋与小区优势;全程协办贷款、过户等流程。
-
税费分析房贷计算
契税 首套房:房屋面积在 140平方米及以下的,按 1% 的税率征收;面积在140平方米以上的,按 1.5% 征收。 二套房:面积在140平方米及以下的,按 1% 征收;面积在 140 平方米以上的,按 2% 征收。 三套房及以上:不论面积大小,均按 3% 征收。 印花税:免
-
户型解读问经纪人
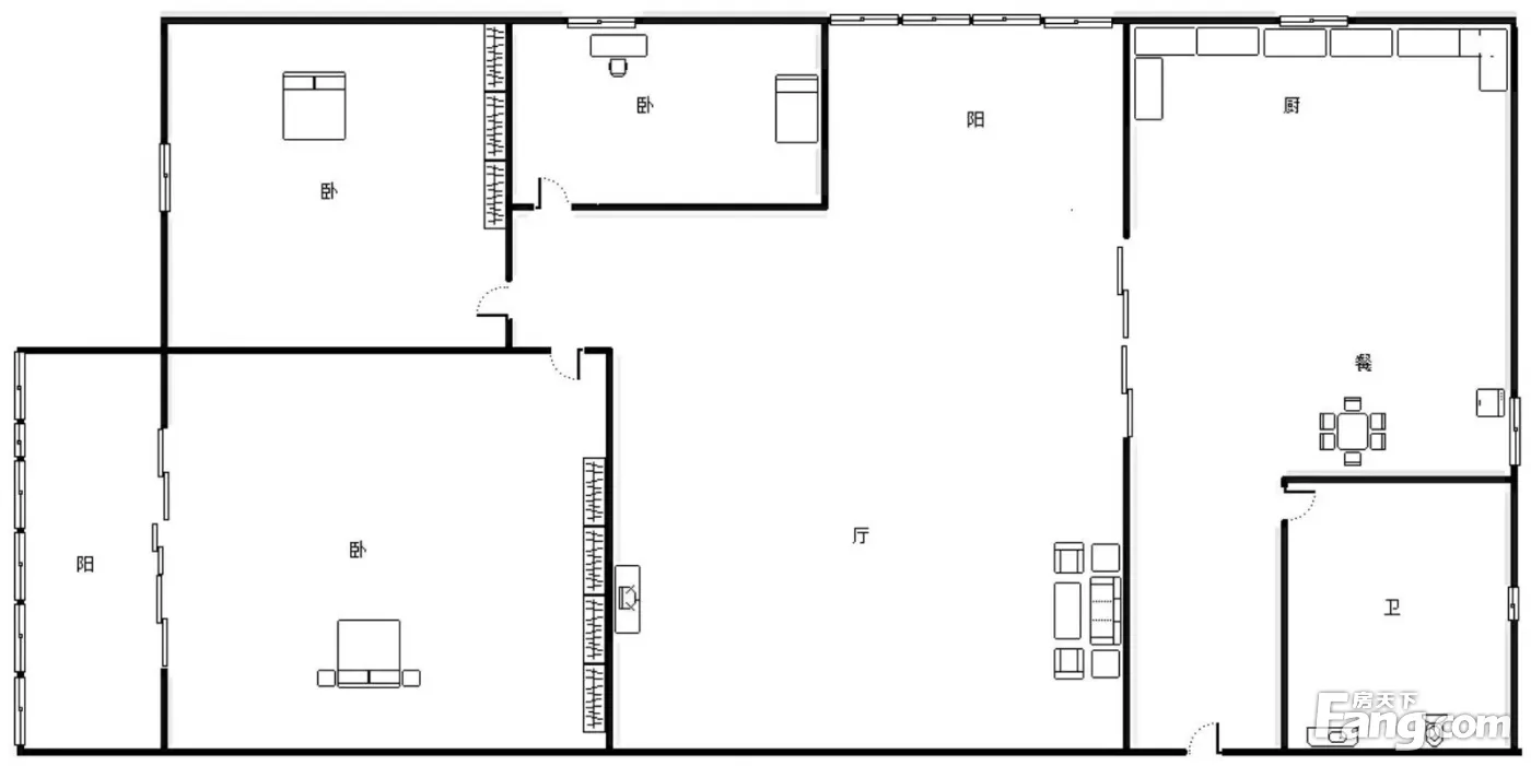
整体布局:户型方正,空间利用率高。动静分区合理,活动与休息区域互不干扰。 空间细节:客厅宽敞,与餐厅相连,带阳台,空间通透。卧室为三居室,主卧带独卫,带飘窗。厨房操作台面宽敞,生活阳台。卫生间为明卫,通风好。 采光通风:全明户型,采光佳,室内明亮。采光通风通透,通风好,空气易流通。 朝向景观:朝南温暖明亮,南北通透通风好。楼层可赏小区景观,也可看江景及城市街景。
周边配套
交通综合评分
查看全部超过重庆98.7%的小区
-
地铁公交
10.0
-
驾车出行
10.0
本月均价 18428元/m²
环比上月 上涨 0.8%
同比去年 下跌 1.77%
猜你喜欢
同小区其它房源
户型齐全,主打明卫,明厨,客厅朝南,主卧朝南三居
巴教村户型主要有84平-147平的明卫,明厨,客厅朝南,主卧朝南的三居 、63平-78平的明厨,明卫的二居 。
*获取完整户型报告,同时会有免费语音讲解服务
-
14913元/㎡
本月挂牌均价
-
0.04%
环比上月
买房加房产交流群,省钱不踩雷
3000+人正在热聊
- 免费咨询
- 专业服务
- 区域解读
- 户型分析

