渎人和街 大家都懂的 电梯房小户型 户型方正采光好
-
100万
总价
-
1室
户型
-
41.93㎡
建筑面积
买房加房产交流群,省钱不踩雷
3000+人正在热聊
-
单价
23850元/平米
- 挂牌价格解析
-
楼层
高楼层/18层
- 咨询楼层
-
套内
32.98㎡
- 咨询套内使用面积
-
楼型
塔楼
-
朝向
东南
-
装修
简装
-
供暖
暂无数据
-
发布
2023-12-28
-
地铁
距2号线大溪沟站约398米
-
咨询总首付
首付约30.5万
首付税费及佣金情况 -
深度测评
小区星都花园(渝中-一号桥)
-
更多
楼户比、楼层高度、交易历史、抵押信息
房源描述(2)
-
核心卖点问经纪人
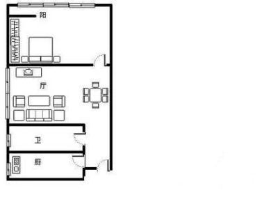
星都花园位于渝中区核心地段,2005年建成的品质住宅小区。可就,刚需纸标未用,本套房源为41.93平米南向一居室,高层采光充足,户型方正实用,包含独立厨房和阳台,满足日常生活所需。房屋保持简装修状态,满五产权清晰,总价98万,单价23372元/平米,性价比突出。 该房源所在楼栋总高20层,属于小区内的高层住宅,南向朝向确保室内采光良好。41.93平米的建筑面积规划为1室0厅1卫1厨1阳台的实用格局,空间利用率高。小区地处渝中成熟生活圈,周边配套完善,交通便利,是都市白领和单身人士的理想选择。
-
核心卖点问经纪人
星都花园 人和GAI纸彪 离校200米 不过马路 未占用 电梯房 带外阳台
周边配套
交通综合评分
查看全部超过重庆18.1%的小区
-
地铁公交
10.0
-
驾车出行
10.0
本月均价 16616元/m²
环比上月 上涨 0.66%
同比去年 上涨 0.76%
猜你喜欢
同小区其它房源
户型齐全,主打户型方正,明厨,明卫,客厅朝南,全明格局,主卧朝南二居
星都花园户型主要有53平-94平的户型方正,明厨,明卫,客厅朝南,全明格局,主卧朝南的二居 、97平-125平的明厨,明卫的三居 、43平-62平的明厨,明卫的一居 。
*获取完整户型报告,同时会有免费语音讲解服务
买房加房产交流群,省钱不踩雷
3000+人正在热聊
- 免费咨询
- 专业服务
- 区域解读
- 户型分析


