龙湖精装洋房美术半岛地铁18号线万象城商圈
-
235万
总价
-
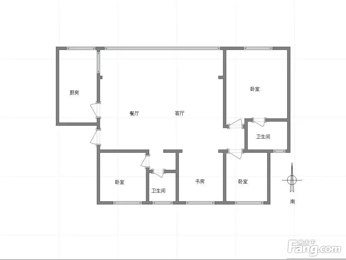
4室2厅
户型
-
131.39㎡
建筑面积
买房加房产交流群,省钱不踩雷
3000+人正在热聊
-
单价
17886元/平米
- 挂牌价格解析
-
楼层
低楼层/7层
- 咨询楼层
-
套内
113.57㎡
- 咨询套内使用面积
-
楼型
板塔结合
-
朝向
东南
-
装修
精装
-
供暖
暂无数据
-
发布
2025-03-13
-
地铁
距18号线黄桷坪站约488米
-
咨询总首付
首付约71.4万
首付税费及佣金情况 -
深度测评
小区龙湖美林美院(九龙坡-黄桷坪)
-
更多
楼户比、楼层高度、交易历史、抵押信息
房源描述(1)
-
核心卖点问经纪人
相信为您推荐的这套房子您一定会满意,赶快行动吧,先到先得! 房屋年代∶null,面积∶131.39平方米,朝向∶南 1. 小区配备高端物业管理,让你享受宾至如归的服务; 2. 小区人文素质高,是您的居家的绝佳选择; 3. 小区居住安静舒适,让您拥有高品质的生活环境; 4. 小区绿化率高,绿树成荫鸟语花香让您随时呼吸到新鲜空气。
-
业主心态问经纪人
业主诚心出售,随时可以过户,业主很信任我,我能了解业主卖房新的动态。目前政策已经基本稳定,是入手的好时候。请不要错过性价比高的好
-
小区配套问经纪人
1、 地理位置优越 2、 公交地铁十分方便。出行方便,上下班方便 3、 购物方便,节省您的宝贵时间 4、 小区绿化率高。环境优美。宁静和谐,好环境总会给人带来好心情 5、 房干净整洁,温馨舒适,窗明几净,就等着您的拎包入住 6、 宽敞明亮,布局大方,采光非常好
-
服务介绍问经纪人
本人从事房地产多年,公司有大量好房源,欢迎进入我的店铺查看,欢迎随时电话咨询,相信我的专业,为您置业安家保驾护航。
-
税费分析房贷计算
税费商议,按实时政策缴纳,不吃税差和差价
周边配套
交通综合评分
查看全部超过重庆0.0%的小区
-
地铁公交
5.0
本月均价 15834元/m²
环比上月 下跌 1.23%
同比去年 下跌 7.23%
猜你喜欢
同小区其它房源
户型齐全,主打南北通透,全明格局三居
龙湖美林美院户型主要有88平-99平的南北通透,全明格局的三居 、71平-72平的全明格局,户型方正的二居 、131平-131平的全明格局,户型方正的四居 。
*获取完整户型报告,同时会有免费语音讲解服务
-
8989元/㎡
本月挂牌均价
-
0.08%
环比上月
买房加房产交流群,省钱不踩雷
3000+人正在热聊
- 免费咨询
- 专业服务
- 区域解读
- 户型分析

