解放碑2023年次新房+三轻轨+带自持商圈+配套成熟
-
145万
总价
-
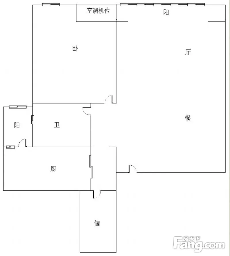
2室2厅
户型
-
88.25㎡
建筑面积
买房加房产交流群,省钱不踩雷
3000+人正在热聊
加入群聊
-
单价
16431元/平米
- 挂牌价格解析
-
楼层
高楼层/49层
- 咨询楼层
-
套内
暂无数据
- 咨询套内使用面积
-
楼型
塔楼
-
朝向
南
-
装修
毛坯
-
供暖
暂无数据
-
发布
2025-02-09
-
地铁
距1号线七星岗站约283米
-
咨询总首付
首付约44.5万
首付税费及佣金情况 -
深度测评
小区顶峰罗宾森尚城华府(渝中-解放碑CBD)
-
更多
楼户比、楼层高度、交易历史、抵押信息
房源描述(1)
周边配套
地址:兴隆街2号(轨道1号线七星岗站1号口出口)
交通综合评分
查看全部7.0
“较好”
超过重庆49.8%的小区
-
地铁公交
10.0
-
驾车出行
10.0
本月均价 16653元/m²
环比上月 下跌 0.01%
同比去年 下跌 0.81%
猜你喜欢
同小区其它房源
户型齐全,主打全明格局,户型方正二居
顶峰罗宾森尚城华府户型主要有89平-96平的全明格局,户型方正的二居 、72平-72平的全明格局,户型方正的一居 、161平-161平的全明格局,户型方正的三居 。
*获取完整户型报告,同时会有免费语音讲解服务
买房加房产交流群,省钱不踩雷
3000+人正在热聊
加入群聊
- 免费咨询
- 专业服务
- 区域解读
- 户型分析
免责声明:房源信息由网站用户提供,其真实性、合法性由信息提供者负责,最终以政府部门登记备案为准。本网站不声明或保证内容之正确性和可靠性,购买该房屋时,请谨慎核查。入学情况仅凭历史经验总结,在此不承诺升学事宜。请您在签订合同之前,切勿支付任何形式的费用,以免上当受骗。


