滨江沿线与视觉盛宴的结合,配套成熟
-
84.8万
总价
-
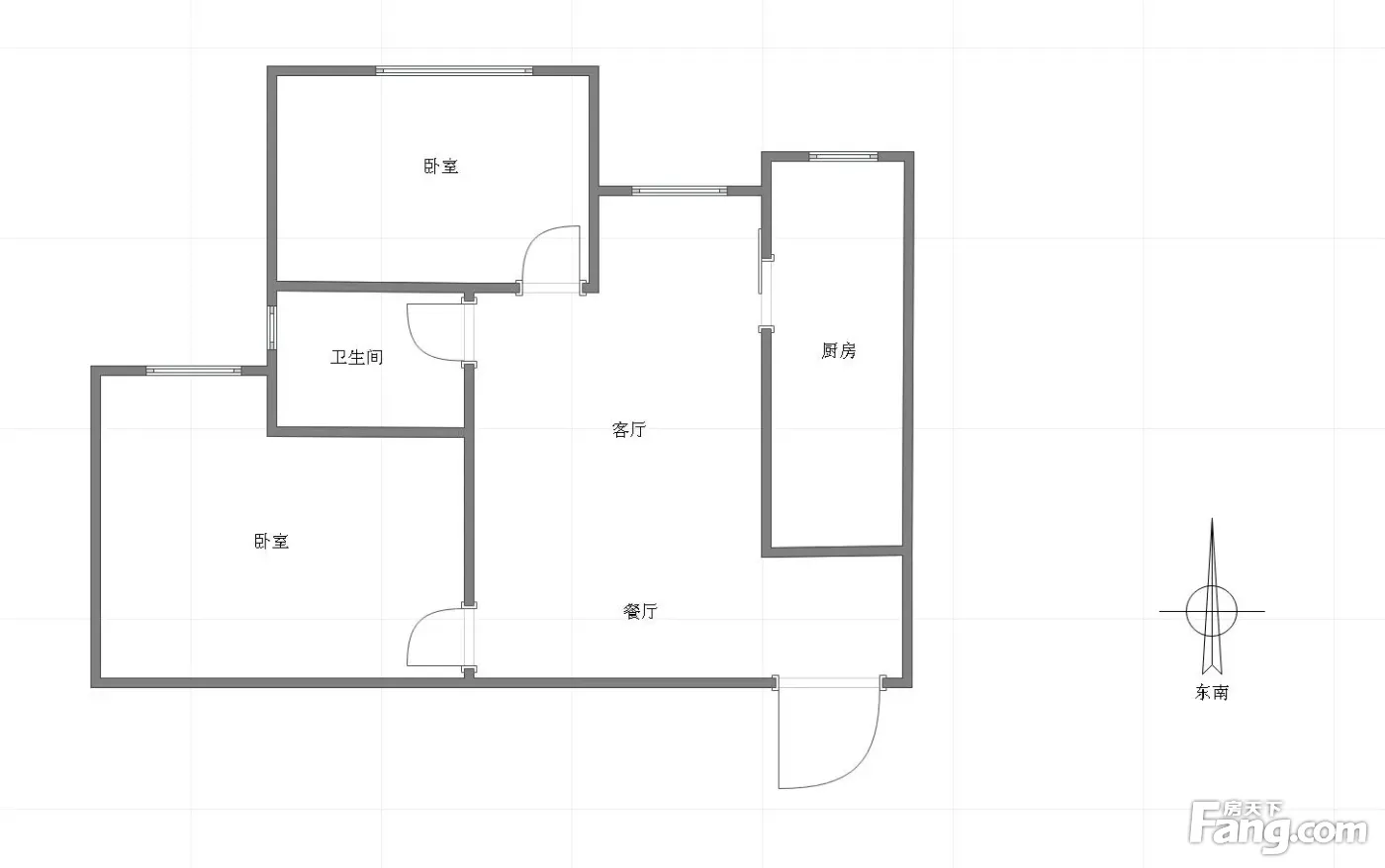
2室2厅1卫
户型
-
64.15㎡
建筑面积
买房加房产交流群,省钱不踩雷
3000+人正在热聊
-
单价
13220元/平米
- 挂牌价格解析
-
楼层
高楼层/33层
- 咨询楼层
-
套内
50.78㎡
- 咨询套内使用面积
-
楼型
塔楼
-
朝向
东南
-
装修
精装
-
供暖
暂无数据
-
年代
2017
-
发布
1900-01-01
-
地铁
距1号线石井坡站约254米
-
咨询总首付
首付约26万
首付税费及佣金情况 -
深度测评
小区融创滨江壹号(沙坪坝-双碑)
-
更多
楼户比、楼层高度、交易历史、抵押信息
房源描述(1)
-
核心卖点问经纪人
房子是融创滨江壹号一期的不临街的房子,三面采光,紧挨观景楼,有地下产权车位 1、点开我的店铺,看到的不仅是佳房,更重要的是一种“购房思想”, 投资也好,居住也罢,想明白,看透彻,才不瞎折腾!!! 2、 买房子是买一种家的感觉!好地段、好位置、好户型、好朝向的房子,保值增值性强,别人都不买的时候您能买到!!! 3、政府调控的时候,才是改善型刚性需求出手买房的好时机,因为这个时候,各个方面属性好的好房子才会出来!!市场大涨的时候咱们刚需是很难买到房子的,政府现在是在给刚需机会买房呢。 4、 租不如买,20年后房子是自己的。 5、房价说高了对不起您,说太低了您买不到。 6、房价有谈就有机会,没谈一定买不到。 7、好房子大家都喜欢,但是一套房子只有一个人能买到。 8、服务理念:用我们的真诚与专业为顾客提供高品质的房产流通服务。
-
业主心态问经纪人
房东置换,诚心出售,价格可以再谈,欢迎看房,随时恭候。
-
小区配套问经纪人
位置:小区地理位置佳,绿化率高,居民素质高 配套:有健身器材,小型篮球场,可供小区居民使用 车位:停车位充足,建有地上停车场和地下车库 保安:小区内24保安巡逻
-
服务介绍问经纪人
本人从事房地产多年,公司有大量好房源,欢迎进入我的店铺查看,欢迎随时电话咨询,相信我的专业,为您置业安家保驾护航。
周边配套
交通综合评分
查看全部超过重庆40.3%的小区
-
地铁公交
9.0
-
驾车出行
10.0
本月均价 14950元/m²
环比上月 上涨 0.37%
同比去年 下跌 1.03%
猜你喜欢
同小区其它房源
户型齐全,主打户型方正,双阳台四居
融创滨江壹号户型主要有89平-166平的户型方正,双阳台的四居 、94平-194平的户型方正,双阳台的三居 、64平-64平的南北通透,全明格局,户型方正的二居 。
*获取完整户型报告,同时会有免费语音讲解服务
-
7341元/㎡
本月挂牌均价
-
1.82%
环比上月
买房加房产交流群,省钱不踩雷
3000+人正在热聊
- 免费咨询
- 专业服务
- 区域解读
- 户型分析

