两江新区 首钢铂鹭风华2号地块 三房 76.8万
-
76.8万
总价
-
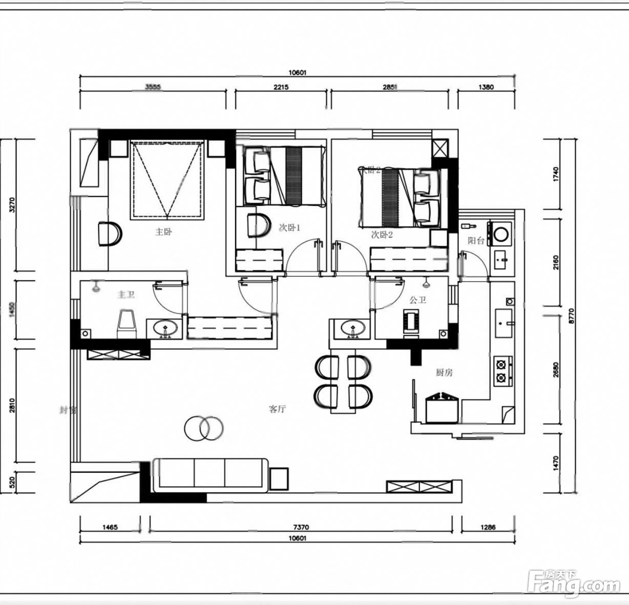
3室2厅2卫
户型
-
98㎡
建筑面积
买房加房产交流群,省钱不踩雷
3000+人正在热聊
-
单价
7837元/平米
- 挂牌价格解析
-
楼层
高层/17层
- 咨询楼层
-
套内
暂无数据
- 咨询套内使用面积
-
楼型
板楼
-
朝向
南
-
装修
精装修
-
年代
2022
-
发布
2026-04-07
-
地铁
距3号线(空港线)莲花站约1044米
-
咨询总首付
首付约19.8万
首付税费及佣金情况 -
深度测评
小区首钢铂鹭风华(两江新区-空港)
-
更多
楼户比、楼层高度、交易历史、抵押信息
房源描述(1)
-
核心卖点问经纪人
推荐理由 1、 地理位置优越 2、 公交地铁 方便。出行方便,上下班方便 3、 购物方便,节省您的宝贵时间 4、 小区绿化率高。环境优美。宁静和谐,好环境总会给人带来好心情 5、 房干净整洁,温馨舒适,窗明几净,就等着您的拎包入住 6、 宽敞明亮,布局大方,采光非常好
-
业主心态问经纪人
业主很信任我,我能了解业主卖房新的动态。目前政策已经基本稳定,是入手的好时候。请不要错过性价比高的好房。
-
小区配套问经纪人
位置:小区地理位置佳,绿化率高,居民素质高 配套:有健身器材,小型篮球场,可供小区居民使用 车位:停车位充足,建有地上停车场和地下车库 保安:小区内24保安巡逻
-
服务介绍问经纪人
本人从事房地产多年,公司有大量好房源,欢迎进入我的店铺查看,欢迎随时电话咨询,相信我的专业,为您置业安家保驾护航。
周边配套
交通综合评分
查看全部超过重庆33.6%的小区
-
地铁公交
9.0
-
驾车出行
10.0
本月均价 7219元/m²
环比上月 下跌 2.33%
同比去年 下跌 14.96%
猜你喜欢
同小区其它房源
-
7913元/㎡
本月挂牌均价
-
1.23%
环比上月
买房加房产交流群,省钱不踩雷
3000+人正在热聊
- 免费咨询
- 专业服务
- 区域解读
- 户型分析

