精装好房出售,速来!错过再无!
-
68万
总价
-
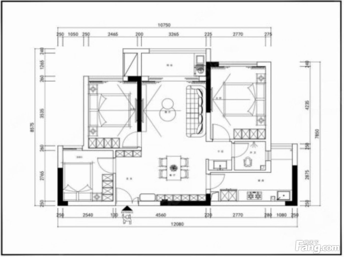
3室2厅1卫
户型
-
84.8㎡
建筑面积
买房加房产交流群,省钱不踩雷
3000+人正在热聊
-
单价
8019元/平米
- 挂牌价格解析
-
楼层
低层/30层
- 咨询楼层
-
套内
暂无数据
- 咨询套内使用面积
-
楼型
板楼
-
朝向
南
-
装修
精装修
-
年代
2019
-
发布
2026-04-03
-
地铁
暂无数据
-
咨询总首付
首付约17.5万
首付税费及佣金情况 -
深度测评
小区西永9号(沙坪坝-大学城)
-
更多
楼户比、楼层高度、交易历史、抵押信息
房源描述(1)
-
核心卖点问经纪人
1、交通很方便 2、朝向:南 3、看房时间:24为您服务,期待您的提前联系 买房注意事项: 1、产权性质 2、所有权是否清晰 3、交易是否透明 4、资金一定要有保障 5、交易后的时间是否明确 6、 是否迁出 7、是否有租赁关系
-
业主心态问经纪人
业主很信任我,我能了解业主卖房新的动态。目前政策已经基本稳定,是入手的好时候。请不要错过性价比高的好房。
-
小区配套问经纪人
位置:小区地理位置佳,绿化率高,居民素质高 配套:有健身器材,小型篮球场,可供小区居民使用 车位:停车位充足,建有地上停车场和地下车库 保安:小区内24保安巡逻
-
服务介绍问经纪人
本人从事房地产多年,公司有大量好房源,欢迎进入我的店铺查看,欢迎随时电话咨询,相信我的专业,为您置业安家保驾护航。
周边配套
交通综合评分
查看全部超过重庆22.7%的小区
-
地铁公交
8.0
-
驾车出行
10.0
本月均价 9131元/m²
环比上月 上涨 0.56%
同比去年 下跌 6.11%
猜你喜欢
同小区其它房源
户型齐全,主打主卧带卫,L型厨房二居
西永9号户型主要有85平-102平的主卧带卫,L型厨房的二居 、130平-131平的户型方正,主卧带卫的五居 。
*获取完整户型报告,同时会有免费语音讲解服务
-
10068元/㎡
本月挂牌均价
-
0.03%
环比上月
买房加房产交流群,省钱不踩雷
3000+人正在热聊
- 免费咨询
- 专业服务
- 区域解读
- 户型分析

