(特价房3套)重庆解放碑,146平豪宅大平层,楼下3轻轨交汇
-
300万
总价
-
3室2厅2卫
户型
-
146㎡
建筑面积
买房加房产交流群,省钱不踩雷
3000+人正在热聊
-
单价
20548元/平米
- 挂牌价格解析
-
楼层
中层/51层
- 咨询楼层
-
套内
暂无数据
- 咨询套内使用面积
-
楼型
板楼
-
朝向
南
-
装修
豪华装修
-
年代
2021
-
发布
2026-04-02
-
地铁
距1号线较场口站约463米
-
咨询总首付
首付约100.1万
首付税费及佣金情况 -
深度测评
小区国浩18T(渝中-解放碑)
-
更多
楼户比、楼层高度、交易历史、抵押信息
房源描述(1)
-
核心卖点问经纪人
项目核心: 母城渝中核心位置: 项目位于城市极核之地解放碑CBD,是重庆热门的板块,即两江四岸核心区。房产的核心逻辑是地段,可以预见未来5年内重庆会形成的房价格局,核心区域的将从房价进一步体现,房价差将会进一步拉大!所以从地段来看,极核而地段的18T是具有的。 重庆:重庆2022年GDP越广州,跃居第四名。作为中西部直辖市,城市,内陆国际金融,一带一路和RCEP重要节点,重庆将持续中国西部和长江上游地区经济发展; 渝中区:渝中区作为重庆政治、经济、商贸金融、文化,旅游,区域、不可替代 和无法越的,解放碑从2018年至今无任何住宅土地供应; 解放碑:解放碑作为重庆城市名片和重庆母城,是外地人到重庆的首站。与江北嘴、弹子石共同组成重庆商务区CBD,其城市定位相当于纽约曼哈顿,上海陆家嘴。
-
业主心态问经纪人
1、本房源为一手新房,公司代理销售,不收取任何费用,并能享受购房专场。2、全程接送客户,陪同客户看房选房,买房是大事,实地考察看看很重要。
-
小区配套问经纪人
小区环境优雅,配套成熟,周边交通便利,居住舒适。
-
服务介绍问经纪人
本人从事房地产多年,公司有大量好房源,欢迎进入我的店铺查看,欢迎随时电话咨询,相信我的专业,为您置业安家保驾护航。
周边配套
交通综合评分
查看全部超过重庆79.4%的小区
-
地铁公交
10.0
-
驾车出行
10.0
本月均价 25238元/m²
环比上月 下跌 0.24%
同比去年 下跌 11.95%
猜你喜欢
同小区其它房源
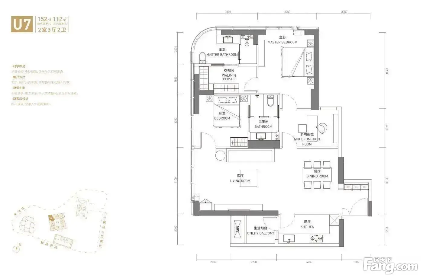
户型齐全,主打南北通透,全明格局三居
国浩·18T户型主要有145平-224平的南北通透,全明格局的三居 、303平-334平的全明格局,户型方正的四居 、111平-204平的全明格局,户型方正的二居 。
*获取完整户型报告,同时会有免费语音讲解服务
-
10760元/㎡
本月挂牌均价
-
0.23%
环比上月
买房加房产交流群,省钱不踩雷
3000+人正在热聊
- 免费咨询
- 专业服务
- 区域解读
- 户型分析

