南北通透 华润置地润府 3室 精装 99平 看房方便 有钥匙
-
163.8万
总价
-
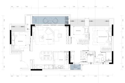
3室2厅2卫
户型
-
99㎡
建筑面积
买房加房产交流群,省钱不踩雷
3000+人正在热聊
加入群聊
-
单价
16545元/平米
- 挂牌价格解析
-
楼层
底层/5层
- 咨询楼层
-
套内
暂无数据
- 咨询套内使用面积
-
楼型
板楼
-
朝向
南北
-
装修
精装修
-
年代
2021
-
发布
2026-03-22
-
地铁
距9号线春华大道站约1005米
-
咨询总首付
首付约41万
首付税费及佣金情况 -
深度测评
小区华润润府(两江新区-中央公园)
-
更多
楼户比、楼层高度、交易历史、抵押信息
房源描述(1)
周边配套
地址:顺义路与兰馨大道交汇处
交通综合评分
查看全部6.9
“较好”
超过重庆0.0%的小区
-
地铁公交
9.0
-
驾车出行
6.0
-
城际交通
5.0
本月均价 18539元/m²
环比上月 下跌 1.69%
同比去年 下跌 9.52%
猜你喜欢
同小区其它房源
户型齐全,主打户型方正,动静分离三居
华润置地重庆润府户型主要有98平-126平的户型方正,动静分离的三居 、143平-143平的户型方正,动静分离的四居 。
*获取完整户型报告,同时会有免费语音讲解服务
买房加房产交流群,省钱不踩雷
3000+人正在热聊
加入群聊
- 免费咨询
- 专业服务
- 区域解读
- 户型分析
免责声明:房源信息由网站用户提供,其真实性、合法性由信息提供者负责,最终以政府部门登记备案为准。本网站不声明或保证内容之正确性和可靠性,购买该房屋时,请谨慎核查。入学情况仅凭历史经验总结,在此不承诺升学事宜。请您在签订合同之前,切勿支付任何形式的费用,以免上当受骗。

