渝北区 华侨城嘉陵江天 四房 368万
-
368万
总价
-
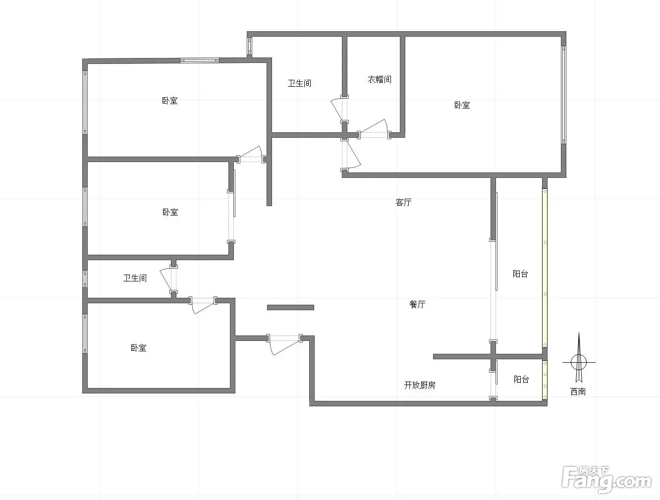
4室2厅2卫
户型
-
198.83㎡
建筑面积
买房加房产交流群,省钱不踩雷
3000+人正在热聊
-
单价
18508元/平米
- 挂牌价格解析
-
楼层
中层/8层
- 咨询楼层
-
套内
暂无数据
- 咨询套内使用面积
-
楼型
板楼
-
朝向
西南
-
装修
精装修
-
发布
2026-01-08
-
地铁
距国博线黄茅坪约1122米
-
咨询总首付
首付约122.6万
首付税费及佣金情况 -
深度测评
小区华侨城嘉陵江天(两江新区-礼嘉)
-
更多
楼户比、楼层高度、交易历史、抵押信息
房源描述(1)
-
核心卖点问经纪人
相信为您推荐的这套房子您一定会满意,赶快行动吧,先到先得! 房屋面积∶198.83平方米, 1. 小区配备良好物业管理,让你享受宾至如归的服务; 2. 小区人文素质高,是您的居家的品质选择; 3. 小区环境安静舒适,让您拥有高品质的生活环境; 4. 小区绿化高,绿树成荫鸟语花香让您随时呼吸到新鲜空气。
周边配套
交通综合评分
查看全部超过重庆72.4%的小区
-
地铁公交
9.0
-
驾车出行
9.0
本月均价 13543元/m²
环比上月 上涨 0.03%
同比去年 下跌 7.59%
猜你喜欢
同小区其它房源
户型齐全,主打户型方正,主卧带卫四居
华侨城嘉陵江天户型主要有184平-278平的户型方正,主卧带卫的四居 、256平-278平的主卧套间,大面宽阳台的五居 。
*获取完整户型报告,同时会有免费语音讲解服务
-
15401元/㎡
本月挂牌均价
-
0.71%
环比上月
买房加房产交流群,省钱不踩雷
3000+人正在热聊
- 免费咨询
- 专业服务
- 区域解读
- 户型分析

