:南滨路旁大四房,单价6000,元,近轻轨,2个站解放碑
-
88万
总价
-
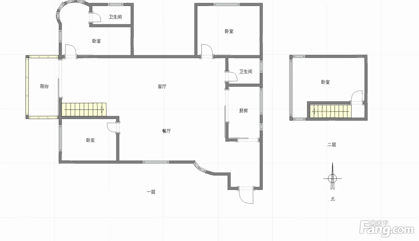
4室2厅2卫
户型
-
142.9㎡
建筑面积
买房加房产交流群,省钱不踩雷
3000+人正在热聊
加入群聊
-
单价
6158元/平米
- 挂牌价格解析
-
楼层
低层/27层
- 咨询楼层
-
套内
暂无数据
- 咨询套内使用面积
-
楼型
板楼
-
朝向
北
-
装修
毛坯
-
年代
2007
-
发布
2025-12-16
-
地铁
距环线上浩站约595米
-
咨询总首付
首付约22.2万
首付税费及佣金情况 -
深度测评
小区聚丰江山里(南岸-海棠溪)
-
更多
楼户比、楼层高度、交易历史、抵押信息
房源描述(1)
周边配套
地址:海棠溪新街1号
交通综合评分
查看全部7.0
“较好”
超过重庆58.9%的小区
-
地铁公交
10.0
-
驾车出行
10.0
本月均价 8538元/m²
环比上月 下跌 1.1%
同比去年 下跌 10.19%
猜你喜欢
同小区其它房源
户型齐全,主打户型方正,明卫,明厨,客厅朝南,全明格局三居
聚丰江山里户型主要有76平-143平的户型方正,明卫,明厨,客厅朝南,全明格局的三居 、44平-96平的户型方正,明厨的二居 、115平-143平的客厅朝南,主卧朝南的四居 。
*获取完整户型报告,同时会有免费语音讲解服务
-
9348元/㎡
本月挂牌均价
-
0.94%
环比上月
买房加房产交流群,省钱不踩雷
3000+人正在热聊
加入群聊
- 免费咨询
- 专业服务
- 区域解读
- 户型分析
免责声明:房源信息由网站用户提供,其真实性、合法性由信息提供者负责,最终以政府部门登记备案为准。本网站不声明或保证内容之正确性和可靠性,购买该房屋时,请谨慎核查。入学情况仅凭历史经验总结,在此不承诺升学事宜。请您在签订合同之前,切勿支付任何形式的费用,以免上当受骗。

