重庆南滨路 必看置地长嘉汇 空中别墅 视野观渝都一览无余
-
3500万
总价
-
8室2厅8卫
户型
-
758㎡
建筑面积
买房加房产交流群,省钱不踩雷
3000+人正在热聊
-
单价
46174元/平米
- 挂牌价格解析
-
楼层
高层/31层
- 咨询楼层
-
套内
暂无数据
- 咨询套内使用面积
-
楼型
板楼
-
朝向
西南
-
装修
简装修
-
发布
2025-11-18
-
地铁
距环线弹子石站约875米
-
咨询总首付
首付约1067.5万
首付税费及佣金情况 -
深度测评
小区长嘉汇五期(南岸-涂山路)
-
更多
楼户比、楼层高度、交易历史、抵押信息
房源描述(1)
-
核心卖点问经纪人
相信为您推荐的这套房子您一定会满意,赶快行动吧,先到先得! 房屋年代∶2023,面积∶758.0平方米,朝向∶西南 1. 小区配备高端物业管理,让你享受宾至如归的服务; 2. 小区人文素质高,是您的居家的绝佳选择; 3. 小区居住安静舒适,让您拥有高品质的生活环境; 4. 小区绿化率高,绿树成荫鸟语花香让您随时呼吸到新鲜空气。
-
业主心态问经纪人
【1]、业主诚心出售,产权清晰,无纠纷,随时过户,价格可谈,随时实地看房! [2]、全程陪同看房,买房是大事,实地考察很重要。 【3]、有更多的房源供您参考:我珍视每一份嘱托,不发布虚假房源、不虚报价格、不吃差价。
-
小区配套问经纪人
1.小区24安保巡逻,人脸识别,刷卡入户。 2.小区配备高端物业管理,让你享受宾至如归的服务 3.小区人文素质高,是您的居家的绝佳选择 4.小区居住安静舒适,让您拥有高品质的生活环境 5.小区绿化率高,绿树成荫鸟语花香让您随时呼吸到新鲜空气
-
服务介绍问经纪人
1:我期待为我的客户、提供高质服务。 2:给予客户以安心;我珍视每一份嘱托。 3:不发布虚假房源、不虚报价格、一心一意竭诚为您。 4:交易不成,费用全退。 谢谢您的本次浏览,祝您生活愉快!
-
税费分析房贷计算
佣.金:100w以内佣.金3666,100w以上佣.金6666. 建面140平以下: 首套契税1% 二套1%,三套及以上3% 建面140平以上:首套契税1.5%,二套2%,三套及以上3% 个人所得税1%或差额的20%,满五免征,
-
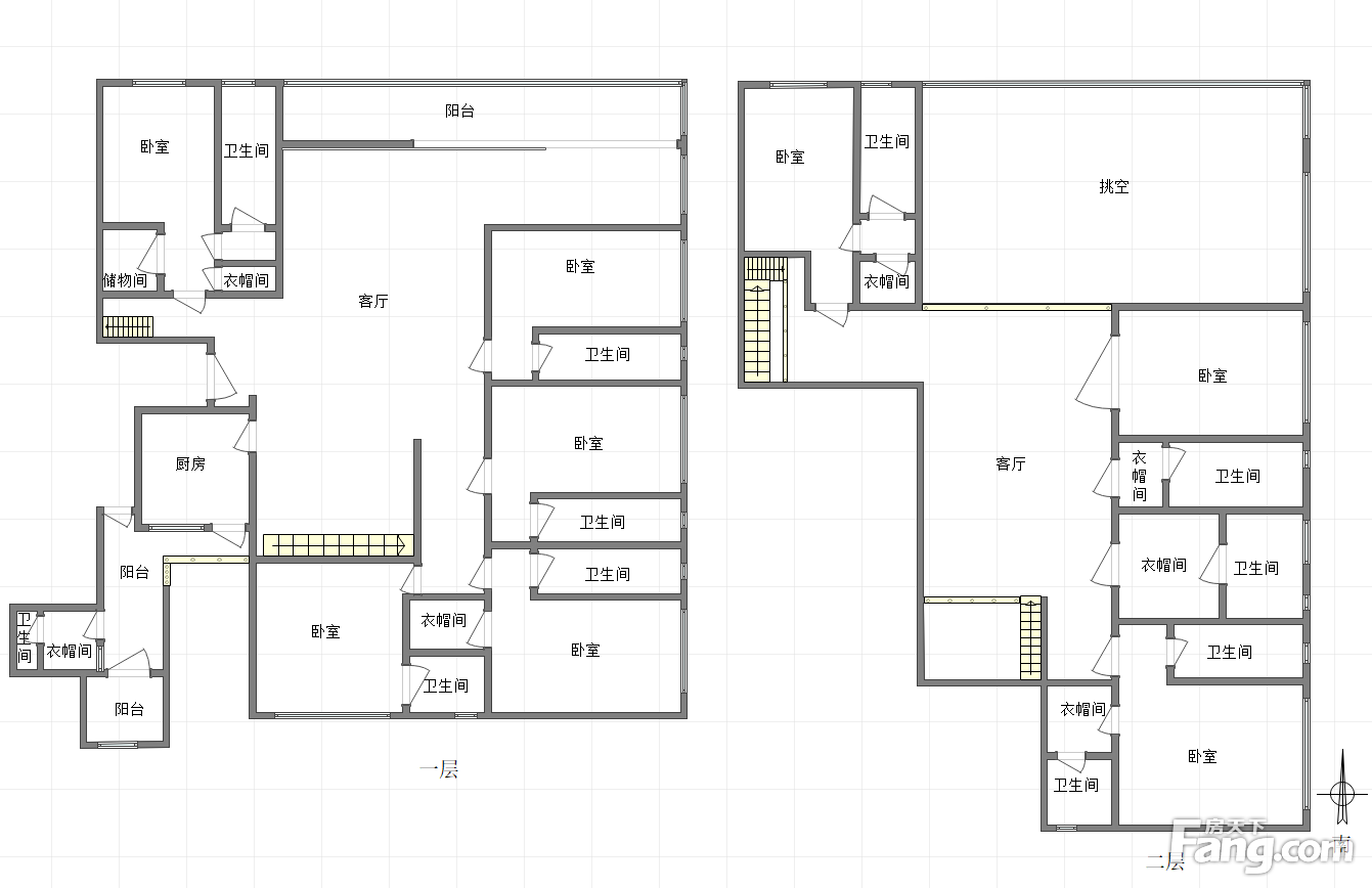
户型解读问经纪人
朝向:南,采光好,阳光充足,通风效果佳 1.小区配备高端物业管理,让你享受宾至如归的服务; 2.小区人文素质高,是您的居家的绝佳选择; 3.小区居住安静舒适,让您拥有高品质的生活环境; 4.小区绿化率高,绿树成荫鸟语花香让您随时呼吸到新鲜空气。
周边配套
交通综合评分
查看全部超过重庆6.9%的小区
-
地铁公交
10.0
-
驾车出行
10.0
本月均价 18458元/m²
环比上月 下跌 0.59%
同比去年 下跌 2.13%
猜你喜欢
同小区其它房源
-
10934元/㎡
本月挂牌均价
-
1.21%
环比上月
买房加房产交流群,省钱不踩雷
3000+人正在热聊
- 免费咨询
- 专业服务
- 区域解读
- 户型分析

