沙坪坝区 首创天阅嘉陵 四房 151万
-
151万
总价
-
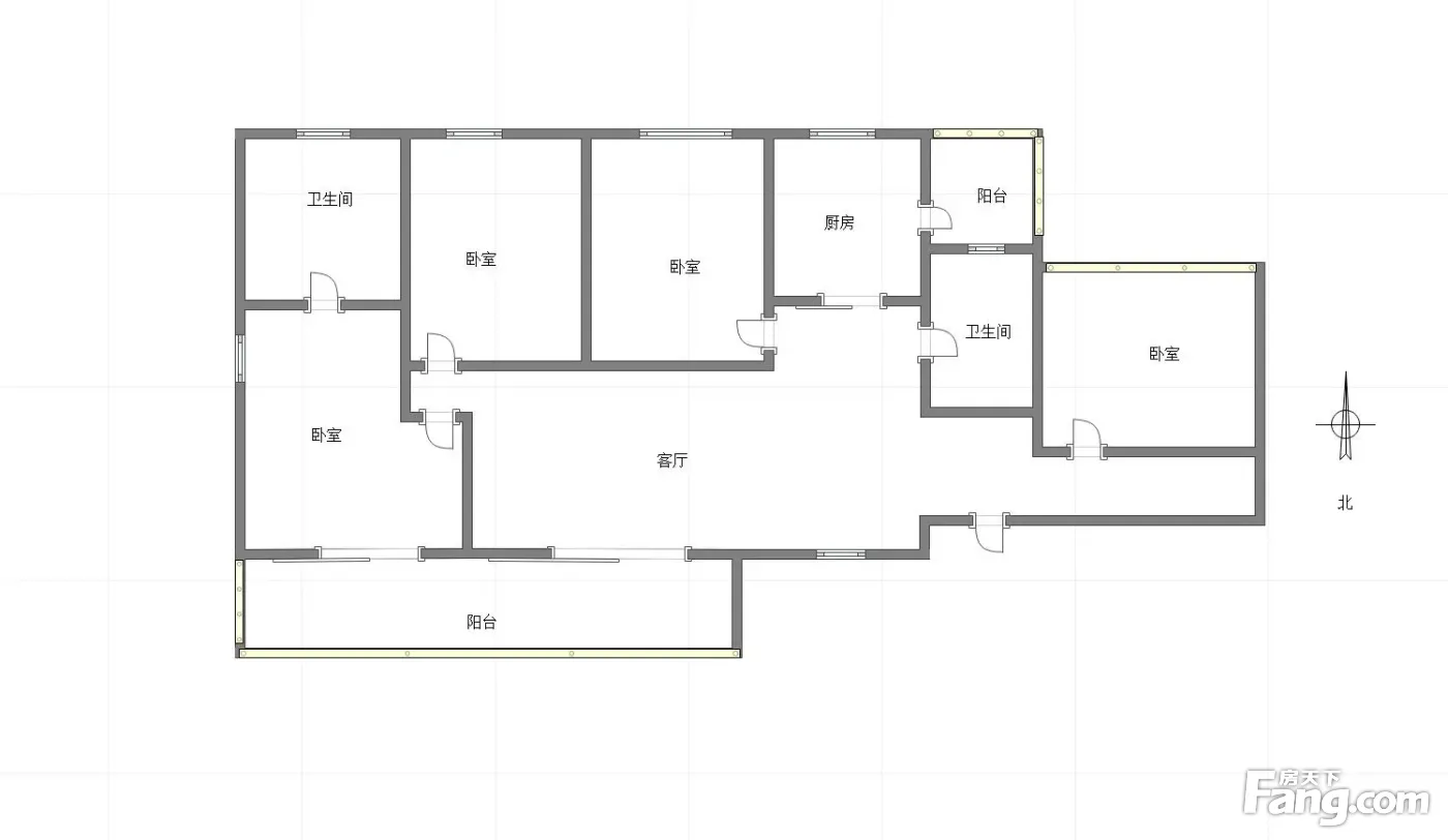
4室2厅2卫
户型
-
162.07㎡
建筑面积
买房加房产交流群,省钱不踩雷
3000+人正在热聊
加入群聊
-
单价
9317元/平米
- 挂牌价格解析
-
楼层
高层/31层
- 咨询楼层
-
套内
暂无数据
- 咨询套内使用面积
-
楼型
板楼
-
朝向
东
-
装修
精装修
-
发布
2025-09-21
-
地铁
距1号线双碑站约789米
-
咨询总首付
首付约50.6万
首付税费及佣金情况 -
深度测评
小区首创天阅嘉陵(沙坪坝-双碑)
-
更多
楼户比、楼层高度、交易历史、抵押信息
房源描述(1)
-
核心卖点问经纪人
相信为您推荐的这套房子您一定会满意,赶快行动吧,先到先得! 房屋年代∶null,面积∶162.07平方米,朝向∶东 1. 小区配备高端物业管理,让你享受宾至如归的服务; 2. 小区人文素质高,是您的居家的绝佳选择; 3. 小区居住安静舒适,让您拥有高品质的生活环境; 4. 小区绿化率高,绿树成荫鸟语花香让您随时呼吸到新鲜空气。
周边配套
地址:嘉新路嘉陵医院c区旁
交通综合评分
查看全部6.2
“较好”
超过重庆33.8%的小区
-
地铁公交
8.0
-
驾车出行
10.0
本月均价 12596元/m²
环比上月 下跌 1.81%
同比去年 下跌 4.01%
猜你喜欢
同小区其它房源
-
7341元/㎡
本月挂牌均价
-
1.82%
环比上月
买房加房产交流群,省钱不踩雷
3000+人正在热聊
加入群聊
- 免费咨询
- 专业服务
- 区域解读
- 户型分析
免责声明:房源信息由网站用户提供,其真实性、合法性由信息提供者负责,最终以政府部门登记备案为准。本网站不声明或保证内容之正确性和可靠性,购买该房屋时,请谨慎核查。入学情况仅凭历史经验总结,在此不承诺升学事宜。请您在签订合同之前,切勿支付任何形式的费用,以免上当受骗。


