人和GAI 通泰大厦旁边 上4楼 精装三房 首次出售 未占用
-
150万
总价
-
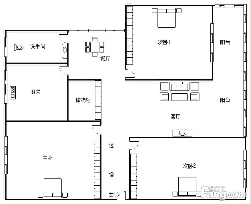
3室2厅1卫
户型
-
82㎡
建筑面积
买房加房产交流群,省钱不踩雷
3000+人正在热聊
加入群聊
-
单价
18293元/平米
- 挂牌价格解析
-
楼层
中层/9层
- 咨询楼层
-
套内
暂无数据
- 咨询套内使用面积
-
楼型
板楼
-
朝向
南
-
装修
精装修
-
发布
2025-05-07
-
地铁
暂无数据
-
咨询总首付
首付约38万
首付税费及佣金情况 -
深度测评
小区人和街20号(奉节-奉节)
-
更多
楼户比、楼层高度、交易历史、抵押信息
房源描述(1)
-
核心卖点问经纪人
人和GAI 通泰大厦旁边 上4楼 精装三房 首次出售 未占用
周边配套
地址:人和街20号
-
8446元/㎡
本月挂牌均价
-
3.55%
环比上月
买房加房产交流群,省钱不踩雷
3000+人正在热聊
加入群聊
- 免费咨询
- 专业服务
- 区域解读
- 户型分析
免责声明:房源信息由网站用户提供,其真实性、合法性由信息提供者负责,最终以政府部门登记备案为准。本网站不声明或保证内容之正确性和可靠性,购买该房屋时,请谨慎核查。入学情况仅凭历史经验总结,在此不承诺升学事宜。请您在签订合同之前,切勿支付任何形式的费用,以免上当受骗。


