央企大三房只要70万即可带回家
-
70.9万
总价
-
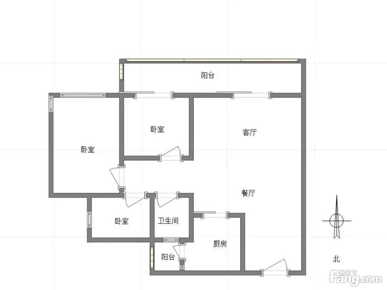
3室2厅1卫
户型
-
96㎡
建筑面积
买房加房产交流群,省钱不踩雷
3000+人正在热聊
加入群聊
-
单价
7385元/平米
- 挂牌价格解析
-
楼层
中层/31层
- 咨询楼层
-
套内
暂无数据
- 咨询套内使用面积
-
楼型
板楼
-
朝向
南
-
装修
简装修
-
年代
2020
-
发布
2025-04-24
-
地铁
距1号线赖家桥站约1189米
-
咨询总首付
首付约17.9万
首付税费及佣金情况 -
深度测评
小区中建瑾和城(沙坪坝-西永)
-
更多
楼户比、楼层高度、交易历史、抵押信息
房源描述(1)
周边配套
地址:西尊路东段
交通综合评分
查看全部6.6
“较好”
超过重庆4.1%的小区
-
地铁公交
9.0
-
驾车出行
10.0
本月均价 10639元/m²
环比上月 下跌 2.12%
同比去年 下跌 5.89%
猜你喜欢
同小区其它房源
户型齐全,主打南北通透,户型方正三居
中建瑾和城户型主要有120平-141平的南北通透,户型方正的三居 、135平-135平的户型方正,主卧带卫的四居 。
*获取完整户型报告,同时会有免费语音讲解服务
-
10814元/㎡
本月挂牌均价
-
0.2%
环比上月
买房加房产交流群,省钱不踩雷
3000+人正在热聊
加入群聊
- 免费咨询
- 专业服务
- 区域解读
- 户型分析
免责声明:房源信息由网站用户提供,其真实性、合法性由信息提供者负责,最终以政府部门登记备案为准。本网站不声明或保证内容之正确性和可靠性,购买该房屋时,请谨慎核查。入学情况仅凭历史经验总结,在此不承诺升学事宜。请您在签订合同之前,切勿支付任何形式的费用,以免上当受骗。


