沙坪坝区 东和科苑 二房 66万
-
64万
总价
-
2室2厅1卫
户型
-
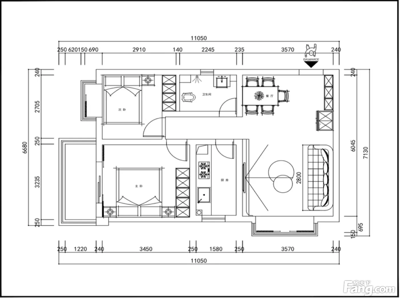
73.38㎡
建筑面积
买房加房产交流群,省钱不踩雷
3000+人正在热聊
-
单价
8722元/平米
- 挂牌价格解析
-
楼层
顶层/27层
- 咨询楼层
-
套内
暂无数据
- 咨询套内使用面积
-
楼型
板楼
-
朝向
南
-
装修
精装修
-
发布
2026-02-24
-
地铁
距1号线杨公桥站约717米
-
咨询总首付
首付约16.6万
首付税费及佣金情况 -
深度测评
小区东和科苑(沙坪坝-沙正街)
-
更多
楼户比、楼层高度、交易历史、抵押信息
房源描述(1)
-
核心卖点问经纪人
相信为您推荐的这套房子您一定会满意,赶快行动吧,先到先得! 房屋年代∶null,面积∶73.38平方米,朝向∶南 1. 小区配备高端物业管理,让你享受宾至如归的服务; 2. 小区人文素质高,是您的居家的绝佳选择; 3. 小区居住安静舒适,让您拥有高品质的生活环境; 4. 小区绿化率高,绿树成荫鸟语花香让您随时呼吸到新鲜空气。
周边配套
交通综合评分
查看全部超过重庆86.4%的小区
-
地铁公交
10.0
-
驾车出行
10.0
本月均价 9748元/m²
环比上月 上涨 0.55%
同比去年 下跌 4.23%
猜你喜欢
同小区其它房源
户型齐全,主打明厨二居
东和科苑SOHO户型主要有51平-85平的明厨的二居 、37平-57平的明厨,客厅朝南的一居 、94平-118平的明厨,主卧朝南的三居 。
*获取完整户型报告,同时会有免费语音讲解服务
-
9574元/㎡
本月挂牌均价
-
0.61%
环比上月
买房加房产交流群,省钱不踩雷
3000+人正在热聊
- 免费咨询
- 专业服务
- 区域解读
- 户型分析


