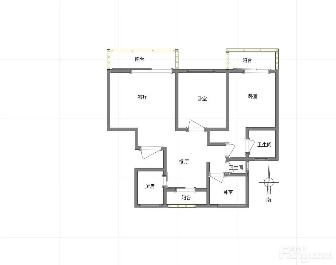
沙坪坝 俊峰香格里拉 3室2厅 130.00㎡ 156万
-
156万元
总价
-
3室2厅2卫
户型
-
130㎡
建筑面积
买房加房产交流群,省钱不踩雷
3000+人正在热聊
加入群聊
-
单价
12000元/平米
- 挂牌价格解析
-
楼层
高层/6层
- 咨询楼层
-
套内
暂无数据
- 咨询套内使用面积
-
朝向
东南
-
年代
2015
-
发布
2026-03-15
-
地铁
距1号线石井坡站约716米
-
咨询总首付
首付约47.2万
首付税费及佣金情况 -
深度测评
小区俊峰香格里拉(沙坪坝-磁器口)
-
更多
楼户比、楼层高度、交易历史、抵押信息
业主自评
-
千里斜阳暮847
加入房天下1227天
接电时间:8:00-21:00
周边配套
地址:石井坡216号
交通综合评分
查看全部7.0
“较好”
超过重庆58.4%的小区
-
地铁公交
10.0
-
驾车出行
10.0
本月均价 14200元/m²
环比上月 下跌 0.75%
同比去年 下跌 8.14%
猜你喜欢
同小区其它房源
户型齐全,主打户型方正,动静分离,高附赠空间三居
俊峰香格里拉户型主要有91平-148平的户型方正,动静分离,高附赠空间的三居 、109平-289平的户型方正,动静分离的四居 、146平-260平的户型方正,动静分离,带露台,入户花园的五居 。
*获取完整户型报告,同时会有免费语音讲解服务
-
9627元/㎡
本月挂牌均价
-
1.01%
环比上月
买房加房产交流群,省钱不踩雷
3000+人正在热聊
加入群聊
联系业主
免责声明:房源信息由网站用户提供,其真实性、合法性由信息提供者负责,最终以政府部门登记备案为准。本网站不声明或保证内容之正确性和可靠性,购买该房屋时,请谨慎核查。入学情况仅凭历史经验总结,在此不承诺升学事宜。请您在签订合同之前,切勿支付任何形式的费用,以免上当受骗。

