沙坪坝 重庆融创文旅城 4室2厅 118.00㎡ 120万
-
120万元
总价
-
4室2厅2卫
户型
-
118㎡
建筑面积
买房加房产交流群,省钱不踩雷
3000+人正在热聊
加入群聊
-
单价
10169元/平米
- 挂牌价格解析
-
楼层
高层/33层
- 咨询楼层
-
套内
暂无数据
- 咨询套内使用面积
-
朝向
南
-
发布
2026-04-28
-
地铁
暂无数据
-
咨询总首付
首付约36.8万
首付税费及佣金情况 -
深度测评
小区重庆融创文旅城(沙坪坝-西永)
-
更多
楼户比、楼层高度、交易历史、抵押信息
业主自评
-
海之峰
加入房天下112天
接电时间:09:00-22:00
周边配套
地址:西永街道西桂路88号
交通综合评分
查看全部5.0
“一般”
超过重庆1.5%的小区
-
地铁公交
5.0
-
驾车出行
10.0
本月均价 9579元/m²
环比上月 下跌 1.37%
同比去年 下跌 10.64%
猜你喜欢
同小区其它房源
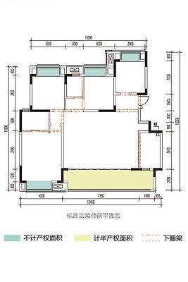
户型齐全,主打全明格局,动静分离,高附赠空间,采光充足三居
重庆融创文旅城户型主要有79平-147平的全明格局,动静分离,高附赠空间,采光充足的三居 、99平-164平的南北通透,全明格局,户型方正,动静分离的四居 、69平-98平的南北通透,全明格局,户型方正,动静分离的二居 。
*获取完整户型报告,同时会有免费语音讲解服务
-
10776元/㎡
本月挂牌均价
-
0.36%
环比上月
买房加房产交流群,省钱不踩雷
3000+人正在热聊
加入群聊
联系业主
免责声明:房源信息由网站用户提供,其真实性、合法性由信息提供者负责,最终以政府部门登记备案为准。本网站不声明或保证内容之正确性和可靠性,购买该房屋时,请谨慎核查。入学情况仅凭历史经验总结,在此不承诺升学事宜。请您在签订合同之前,切勿支付任何形式的费用,以免上当受骗。

