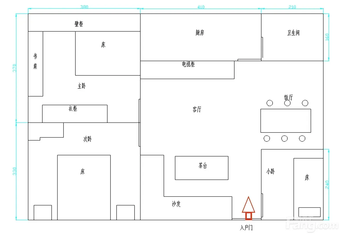
万州 万州老地委小区 3室2厅 81.11㎡ 38万
-
38万元
总价
-
3室2厅1卫
户型
-
81.11㎡
建筑面积
买房加房产交流群,省钱不踩雷
3000+人正在热聊
加入群聊
-
单价
4685元/平米
- 挂牌价格解析
-
楼层
高层/12层
- 咨询楼层
-
套内
暂无数据
- 咨询套内使用面积
-
朝向
南
-
年代
2003
-
发布
2026-03-15
-
咨询总首付
首付约11.5万
首付税费及佣金情况 -
深度测评
小区万州老地委小区(万州-万州)
-
更多
楼户比、楼层高度、交易历史、抵押信息
业主自评
-
桃花带雨浓940
加入房天下456天
接电时间:09:00-18:00
万**学区房,高笋塘商圈,3方采光,视野好外窗可望长江,内窗全览万**校区和太白岩。
万**学区房,高笋塘商圈,3方采光,视野好外窗可望长江,内窗全览万**校区和太白岩。
周边配套
地址:重庆市万州区太白路45号
-
4272元/㎡
本月挂牌均价
-
1.37%
环比上月
买房加房产交流群,省钱不踩雷
3000+人正在热聊
加入群聊
联系业主
免责声明:房源信息由网站用户提供,其真实性、合法性由信息提供者负责,最终以政府部门登记备案为准。本网站不声明或保证内容之正确性和可靠性,购买该房屋时,请谨慎核查。入学情况仅凭历史经验总结,在此不承诺升学事宜。请您在签订合同之前,切勿支付任何形式的费用,以免上当受骗。

