沙坪坝 万科金域华庭 4室2厅 135.00㎡ 165万
-
149.9万元
总价
-
4室2厅2卫
户型
-
135㎡
建筑面积
买房加房产交流群,省钱不踩雷
3000+人正在热聊
加入群聊
-
单价
11104元/平米
- 挂牌价格解析
-
楼层
高层/47层
- 咨询楼层
-
套内
暂无数据
- 咨询套内使用面积
-
朝向
南
-
年代
2019
-
发布
2025-09-23
-
地铁
距1号线磁器口站约822米
-
咨询总首付
首付约45.7万
首付税费及佣金情况 -
深度测评
小区万科金域华庭(沙坪坝-磁器口)
-
更多
楼户比、楼层高度、交易历史、抵押信息
业主自评
-
newhouse821781880
加入房天下3545天
接电时间:09:00-22:00
周边配套
地址:金沙正街国盛大桥旁
交通综合评分
查看全部7.0
“较好”
超过重庆26.4%的小区
-
地铁公交
10.0
-
驾车出行
10.0
本月均价 12619元/m²
环比上月 上涨 0.31%
同比去年 下跌 4.38%
猜你喜欢
同小区其它房源
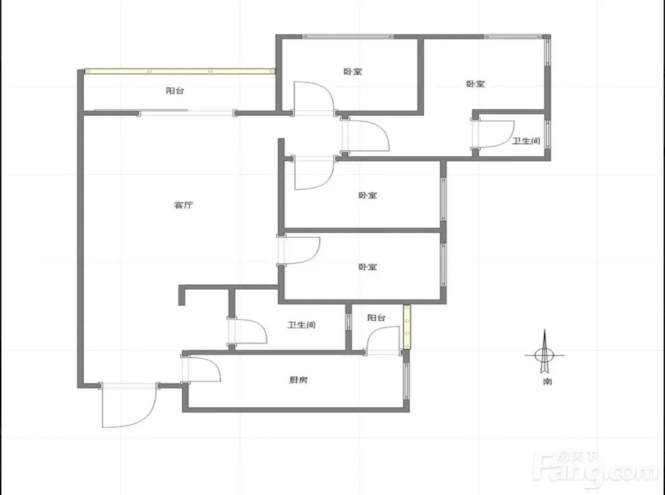
户型齐全,主打明卫,双阳台,主卧朝南四居
万科金域华庭户型主要有134平-174平的明卫,双阳台,主卧朝南的四居 、101平-105平的户型方正,明卫,双阳台的三居 、233平-233平的明卫,客厅朝南,双阳台的其他居 。
*获取完整户型报告,同时会有免费语音讲解服务
-
9627元/㎡
本月挂牌均价
-
1.01%
环比上月
买房加房产交流群,省钱不踩雷
3000+人正在热聊
加入群聊
联系业主
免责声明:房源信息由网站用户提供,其真实性、合法性由信息提供者负责,最终以政府部门登记备案为准。本网站不声明或保证内容之正确性和可靠性,购买该房屋时,请谨慎核查。入学情况仅凭历史经验总结,在此不承诺升学事宜。请您在签订合同之前,切勿支付任何形式的费用,以免上当受骗。

