汇景铂庭 2室1厅 建面56.80㎡,赠送多,邻近大露台户型
-
62万元
总价
-
2室1厅2卫
户型
-
56.8㎡
建筑面积
买房加房产交流群,省钱不踩雷
3000+人正在热聊
加入群聊
-
单价
10915元/平米
- 挂牌价格解析
-
楼层
顶层/32层
- 咨询楼层
-
套内
暂无数据
- 咨询套内使用面积
-
朝向
南北
-
年代
2021
-
发布
2026-01-26
-
地铁
距1号线小龙坎站约684米
-
咨询总首付
首付约19.1万
首付税费及佣金情况 -
深度测评
小区红人馆(沙坪坝-工人村)
-
更多
楼户比、楼层高度、交易历史、抵押信息
业主自评
-
子雅云
加入房天下4003天
接电时间:09:00-22:00
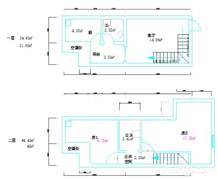
房子门口邻近大露台,自住装修标准:4E环保家居,品牌抗甲醛金装环保漆,十大品脾负离子墙地砖:空调、洗衣机、厨房电器齐全并一级耗,一楼有阳台二楼卧室有L型大飘窗.能视野些许江景,房子每个房间采光良好,面积赠送较多,实际套内面积近80平方米.
房子门口邻近大露台,自住装修标准:4E环保家居,品牌抗甲醛金装环保漆,十大品脾负离子墙地砖:空调、洗衣机、厨房电器齐全并一级耗,一楼有阳台二楼卧室有L型大飘窗.能视野些许江景,房子每个房间采光良好,面积赠送较多,实际套内面积近80平方米.
周边配套
地址:汉渝路
交通综合评分
查看全部7.0
“较好”
超过重庆74.6%的小区
-
地铁公交
10.0
-
驾车出行
10.0
本月均价 8884元/m²
环比上月 下跌 0.9%
同比去年 下跌 6.44%
猜你喜欢
同小区其它房源
-
9348元/㎡
本月挂牌均价
-
3.88%
环比上月
买房加房产交流群,省钱不踩雷
3000+人正在热聊
加入群聊
联系业主
免责声明:房源信息由网站用户提供,其真实性、合法性由信息提供者负责,最终以政府部门登记备案为准。本网站不声明或保证内容之正确性和可靠性,购买该房屋时,请谨慎核查。入学情况仅凭历史经验总结,在此不承诺升学事宜。请您在签订合同之前,切勿支付任何形式的费用,以免上当受骗。

