全看江丨真滨江****丨近地铁丨产权清晰丨壹江城诚意出售
-
119万元
总价
-
4室2厅2卫
户型
-
135.46㎡
建筑面积
买房加房产交流群,省钱不踩雷
3000+人正在热聊
加入群聊
-
单价
8785元/平米
- 挂牌价格解析
-
楼层
低层/18层
- 咨询楼层
-
套内
暂无数据
- 咨询套内使用面积
-
朝向
南
-
年代
2013
-
发布
2025-12-10
-
咨询总首付
首付约35.8万
首付税费及佣金情况 -
深度测评
小区大川壹江城(江北-石马河)
-
更多
楼户比、楼层高度、交易历史、抵押信息
业主自评
-
soufun-a1616
加入房天下4046天
接电时间:09:00-22:00
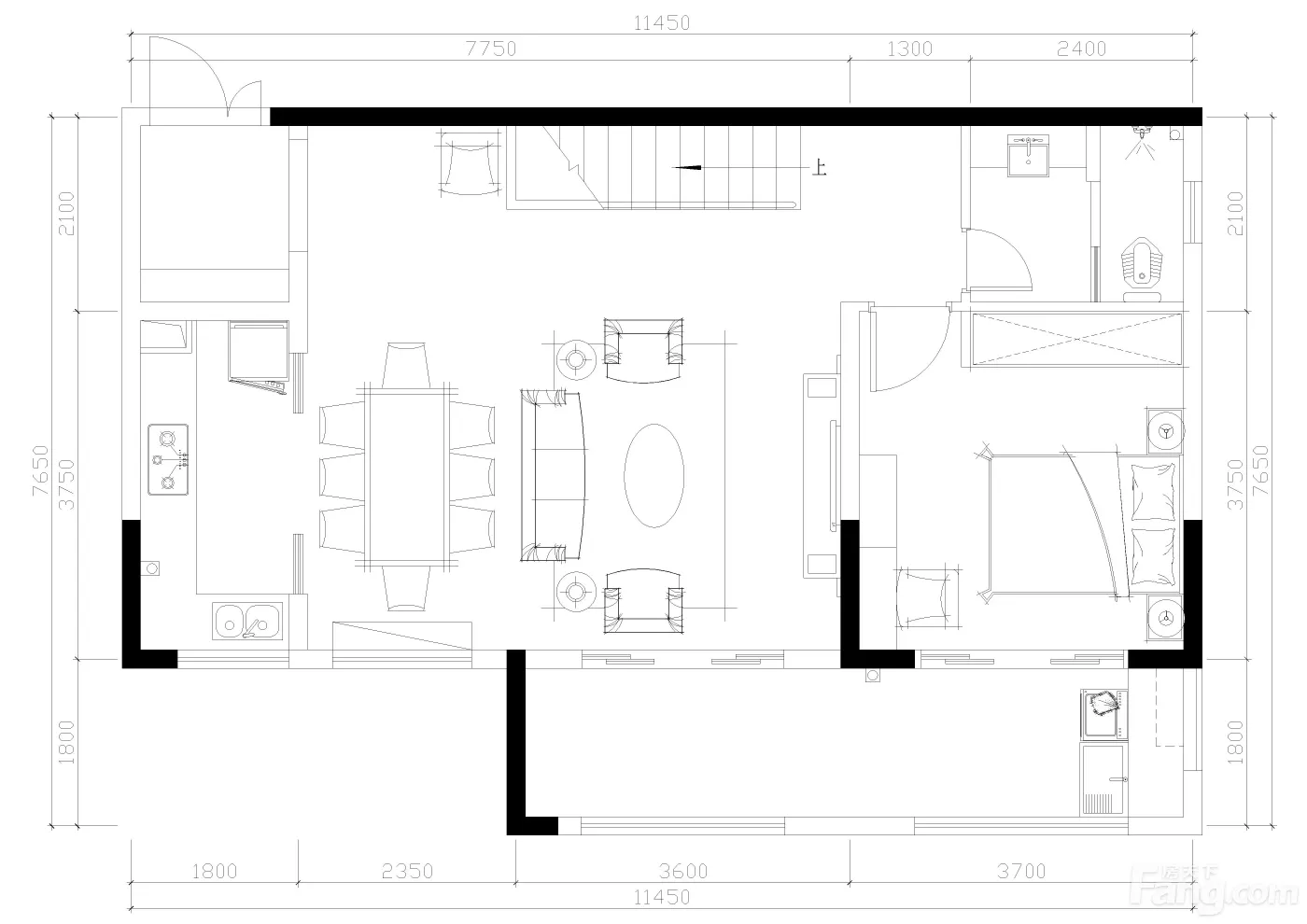
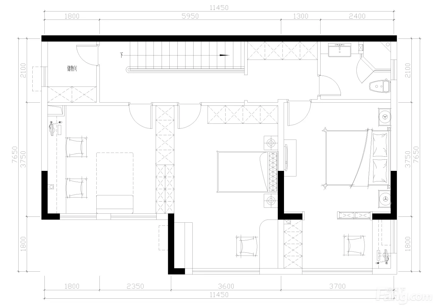
坐落在石马河高家花园大桥桥头壹江城,10**到沙坪坝和冉家坝,生活交通也十分便捷。标准学区房,宏帆**初中部直线100米,高中部一墙之隔。大川壹江城是一个备受欢迎的小区,环境优美且舒适,是居家生活的好选择。这套房子建筑面积为135.46平方米,实际面积是163平,宽敞明亮。最吸引人的地方是它的朝向——南向,让房子一年四季都能享受到充足的阳光,室内光线好,尤其是在阴沉的天气里,家里也会显得格外明亮。房子为横厅跃层格局,4室2厅2卫,这样的户型非常适合三代同堂或多娃家庭居住。总价是145万元,是非常诚意的价格!
坐落在石马河高家花园大桥桥头壹江城,10**到沙坪坝和冉家坝,生活交通也十分便捷。标准学区房,宏帆**初中部直线100米,高中部一墙之隔。大川壹江城是一个备受欢迎的小区,环境优美且舒适,是居家生活的好选择。这套房子建筑面积为135.46平方米,实际面积是163平,宽敞明亮。最吸引人的地方是它的朝向——南向,让房子一年四季都能享受到充足的阳光,室内光线好,尤其是在阴沉的天气里,家里也会显得格外明亮。房子为横厅跃层格局,4室2厅2卫,这样的户型非常适合三代同堂或多娃家庭居住。总价是145万元,是非常诚意的价格!
周边配套
地址:石马河高家花园大桥桥头
交通综合评分
查看全部7.0
“较好”
超过重庆90.1%的小区
-
地铁公交
10.0
-
驾车出行
10.0
本月均价 10728元/m²
环比上月 下跌 1.85%
同比去年 下跌 8.44%
猜你喜欢
同小区其它房源
户型齐全,主打户型方正,明厨,明卫二居
大川壹江城户型主要有49平-115平的户型方正,明厨,明卫的二居 、46平-175平的户型方正,明卫,明厨,客厅朝南,全明格局的三居 、52平-189平的明卫的四居 。
*获取完整户型报告,同时会有免费语音讲解服务
买房加房产交流群,省钱不踩雷
3000+人正在热聊
加入群聊
联系业主
免责声明:房源信息由网站用户提供,其真实性、合法性由信息提供者负责,最终以政府部门登记备案为准。本网站不声明或保证内容之正确性和可靠性,购买该房屋时,请谨慎核查。入学情况仅凭历史经验总结,在此不承诺升学事宜。请您在签订合同之前,切勿支付任何形式的费用,以免上当受骗。

