洋房,南北通透三房,横厅设计,可改四房
-
135万元
总价
-
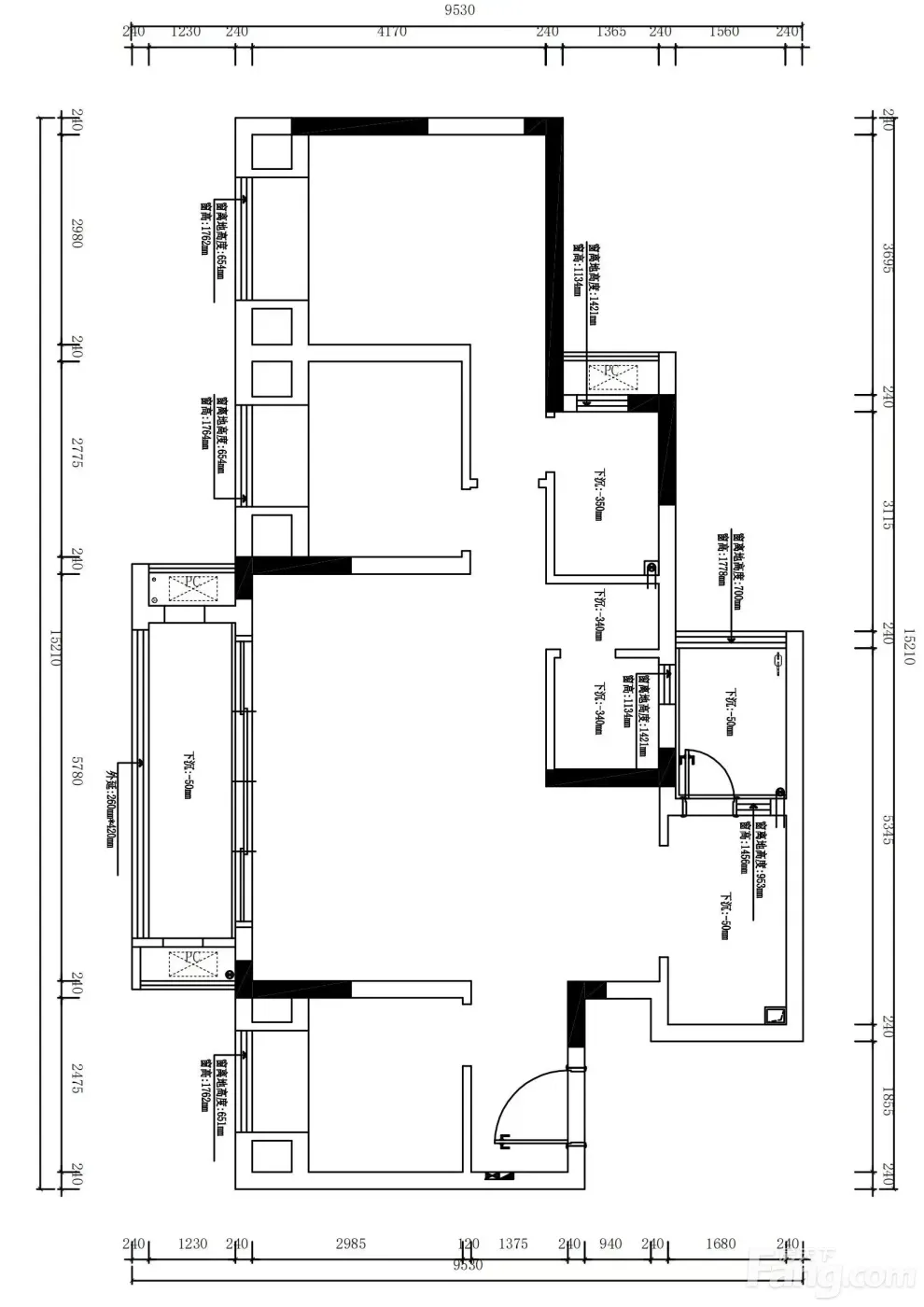
3室2厅1卫
户型
-
99.86㎡
建筑面积
买房加房产交流群,省钱不踩雷
3000+人正在热聊
加入群聊
-
单价
13519元/平米
- 挂牌价格解析
-
楼层
中层/8层
- 咨询楼层
-
套内
暂无数据
- 咨询套内使用面积
-
朝向
南北
-
年代
2023
-
发布
2025-02-13
-
地铁
距3号线四公里站约786米
-
咨询总首付
首付约40.8万
首付税费及佣金情况 -
深度测评
小区中梁海成南山云璟(南岸-学府大道)
-
更多
楼户比、楼层高度、交易历史、抵押信息
业主自评
-
open8092560738
加入房天下3394天
接电时间:09:00-22:00
在南坪商圈附近的中梁海成南山云璟有一套我家正在出售的房子,位置非常方便,距离重庆工商大学很近。这套住宅面积为99.86平方米,使用使用面积近90平,设有3室2厅2卫,布局合理,横厅设计,可改4房,生活舒适。房子的朝向是南北通透,通风采光非常好,这样的设计在城市中十分难得。小区环境优美,绿化率高,散步、锻炼都非常合适。周边生活设施完善,购物、餐饮、娱乐都很方便,特别适合日常生活。无论是上下班交通还是周末休闲,都能轻松搞定。房子的价格135万元,考虑到地段和户型,性价比很高。对于有家庭的人来说,这个三居室的房子非常好。
在南坪商圈附近的中梁海成南山云璟有一套我家正在出售的房子,位置非常方便,距离重庆工商大学很近。这套住宅面积为99.86平方米,使用使用面积近90平,设有3室2厅2卫,布局合理,横厅设计,可改4房,生活舒适。房子的朝向是南北通透,通风采光非常好,这样的设计在城市中十分难得。小区环境优美,绿化率高,散步、锻炼都非常合适。周边生活设施完善,购物、餐饮、娱乐都很方便,特别适合日常生活。无论是上下班交通还是周末休闲,都能轻松搞定。房子的价格135万元,考虑到地段和户型,性价比很高。对于有家庭的人来说,这个三居室的房子非常好。
周边配套
地址:南坪商圈学府大道重庆工商大学旁
交通综合评分
查看全部7.0
“较好”
超过重庆3.8%的小区
-
地铁公交
10.0
-
驾车出行
10.0
本月均价 11329元/m²
环比上月 下跌 1.27%
同比去年 下跌 16.98%
猜你喜欢
同小区其它房源
户型齐全,主打全明格局,户型方正三居
中梁海成南山云璟户型主要有88平-114平的全明格局,户型方正的三居 、71平-74平的全明格局,户型方正的二居 。
*获取完整户型报告,同时会有免费语音讲解服务
-
9810元/㎡
本月挂牌均价
-
0.71%
环比上月
买房加房产交流群,省钱不踩雷
3000+人正在热聊
加入群聊
联系业主
免责声明:房源信息由网站用户提供,其真实性、合法性由信息提供者负责,最终以政府部门登记备案为准。本网站不声明或保证内容之正确性和可靠性,购买该房屋时,请谨慎核查。入学情况仅凭历史经验总结,在此不承诺升学事宜。请您在签订合同之前,切勿支付任何形式的费用,以免上当受骗。

