渝北 浪漫满屋 1室1厅
-
52万元
总价
-
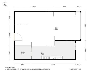
1室1厅1卫
户型
-
46.2㎡
建筑面积
买房加房产交流群,省钱不踩雷
3000+人正在热聊
加入群聊
-
单价
11255元/平米
- 挂牌价格解析
-
楼层
中层/30层
- 咨询楼层
-
套内
暂无数据
- 咨询套内使用面积
-
朝向
东南
-
发布
2024-08-16
-
地铁
距6号线黄泥塝约623米
-
咨询总首付
首付约16.4万
首付税费及佣金情况 -
深度测评
小区浪漫满屋(两江新区-黄泥磅)
-
更多
楼户比、楼层高度、交易历史、抵押信息
业主自评
-
勿忘我舟
加入房天下4166天
接电时间:09:00-22:00
周边配套
地址:重庆市江北黄泥塝
交通综合评分
查看全部7.0
“较好”
超过重庆55.9%的小区
-
地铁公交
10.0
-
驾车出行
10.0
本月均价 10262元/m²
环比上月 下跌 6.14%
同比去年 下跌 9.21%
猜你喜欢
同小区其它房源
户型齐全,主打明厨一居
浪漫满屋户型主要有30平-46平的明厨的一居 、55平-80平的明卫,明厨,客厅朝南,全明格局,主卧朝南的二居 、120平-120平的户型方正,明厨,客厅朝南的三居 。
*获取完整户型报告,同时会有免费语音讲解服务
买房加房产交流群,省钱不踩雷
3000+人正在热聊
加入群聊
联系业主
免责声明:房源信息由网站用户提供,其真实性、合法性由信息提供者负责,最终以政府部门登记备案为准。本网站不声明或保证内容之正确性和可靠性,购买该房屋时,请谨慎核查。入学情况仅凭历史经验总结,在此不承诺升学事宜。请您在签订合同之前,切勿支付任何形式的费用,以免上当受骗。

