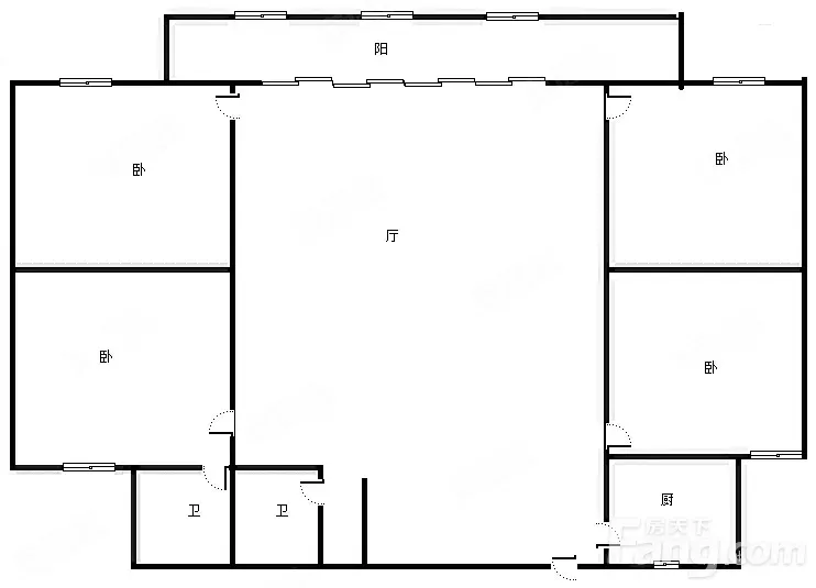
渝中区重庆核心地段江景大花园阳台4室2卫方正大平层
-
95万元
总价
-
4室1厅2卫
户型
-
125㎡
建筑面积
买房加房产交流群,省钱不踩雷
3000+人正在热聊
加入群聊
-
单价
7600元/平米
- 挂牌价格解析
-
楼层
高层/16层
- 咨询楼层
-
套内
暂无数据
- 咨询套内使用面积
-
朝向
北
-
年代
1991
-
发布
2024-10-10
-
地铁
距1号线两路口站约546米
-
咨询总首付
首付约29.2万
首付税费及佣金情况 -
深度测评
小区枇杷山正街小区(渝中-两路口)
-
更多
楼户比、楼层高度、交易历史、抵押信息
业主自评
-
游神
加入房天下730天
接电时间:08:00-23:00
4室一大厅2卫,满5唯1,别墅级超大客厅,特大花园阳台,坐北朝南无遮挡全江景,看长江两个桥,可种花种树养鱼,采光好,地段好,周边规划好:距文化宫,枇杷山,全民健身中心等多个公园仅500米,实用面积大于建面,不要物管费,三甲医院在旁边,距儿童医院300米,周边配套齐全,7x24小时随时看房!
4室一大厅2卫,满5唯1,别墅级超大客厅,特大花园阳台,坐北朝南无遮挡全江景,看长江两个桥,可种花种树养鱼,采光好,地段好,周边规划好:距文化宫,枇杷山,全民健身中心等多个公园仅500米,实用面积大于建面,不要物管费,三甲医院在旁边,距儿童医院300米,周边配套齐全,7x24小时随时看房!
周边配套
地址:重庆市渝中区两路口文化宫枇杷山正街
交通综合评分
查看全部7.0
“较好”
超过重庆44.3%的小区
-
地铁公交
10.0
-
驾车出行
10.0
本月均价 6398元/m²
环比上月 上涨 0.2%
同比去年 下跌 4.34%
猜你喜欢
同小区其它房源
户型齐全,主打明卫,明厨,客厅朝南,全明格局,双卧朝南,主卧朝南二居
枇杷山正街小区户型主要有62平-88平的明卫,明厨,客厅朝南,全明格局,双卧朝南,主卧朝南的二居 、78平-127平的明厨,明卫,客厅朝南,全明格局的三居 、30平-53平的明厨,客厅朝南的一居 。
*获取完整户型报告,同时会有免费语音讲解服务
-
9236元/㎡
本月挂牌均价
-
1.41%
环比上月
买房加房产交流群,省钱不踩雷
3000+人正在热聊
加入群聊
联系业主
免责声明:房源信息由网站用户提供,其真实性、合法性由信息提供者负责,最终以政府部门登记备案为准。本网站不声明或保证内容之正确性和可靠性,购买该房屋时,请谨慎核查。入学情况仅凭历史经验总结,在此不承诺升学事宜。请您在签订合同之前,切勿支付任何形式的费用,以免上当受骗。

