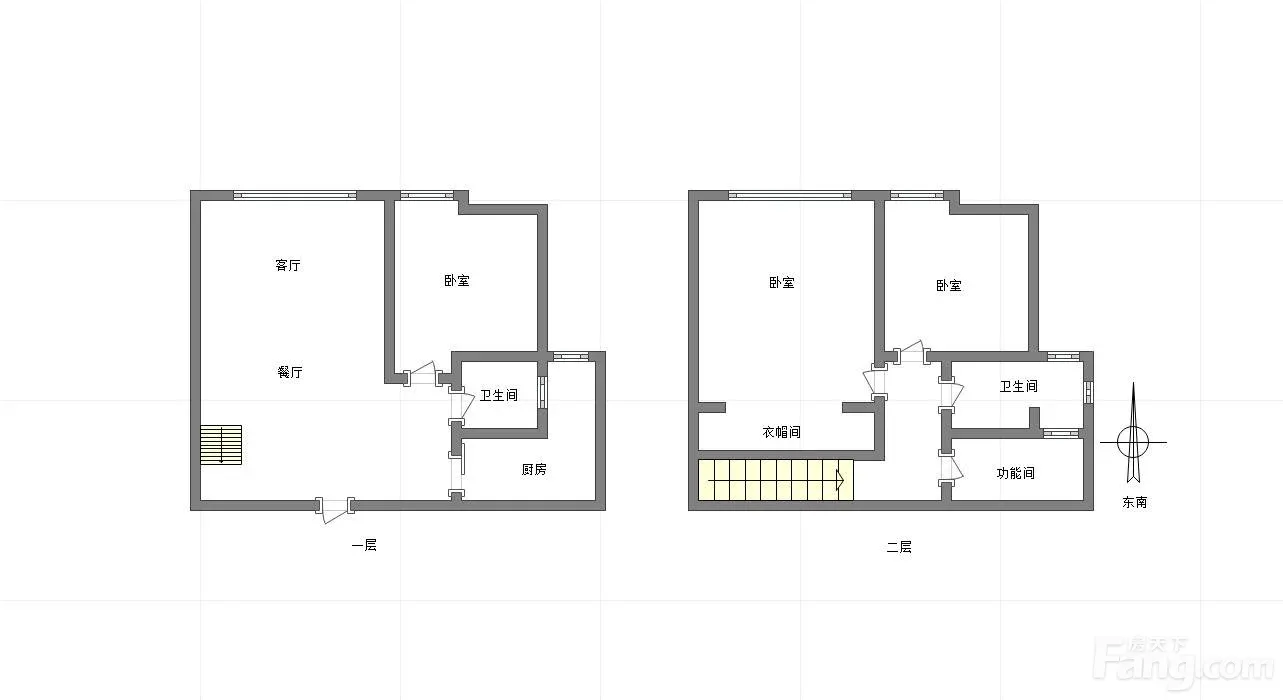
诚心出售 光亮天润城二期 精装跃层4室2厅 套内100多平
-
83万元
总价
-
4室2厅2卫
户型
-
86.46㎡
建筑面积
买房加房产交流群,省钱不踩雷
3000+人正在热聊
加入群聊
-
单价
9600元/平米
- 挂牌价格解析
-
楼层
中层/32层
- 咨询楼层
-
套内
暂无数据
- 咨询套内使用面积
-
朝向
南
-
年代
2015
-
发布
2024-10-11
-
地铁
距6号线龙凤溪约476米
-
咨询总首付
首付约25.4万
首付税费及佣金情况 -
深度测评
小区光亮天润城二期(北碚-城南新区)
-
更多
楼户比、楼层高度、交易历史、抵押信息
业主自评
-
乱分春色到人家
加入房天下1407天
接电时间:09:00-22:00
房子在光亮天润城二期小区,环境优美,绿化充足;
房子在光亮天润城二期小区,环境优美,绿化充足;
周边配套
交通综合评分
查看全部6.2
“较好”
超过重庆80.3%的小区
-
地铁公交
8.0
-
驾车出行
10.0
本月均价 8042元/m²
环比上月 下跌 0.72%
同比去年 下跌 7.97%
猜你喜欢
同小区其它房源
户型齐全,主打明卫,双阳台三居
光亮天润城二期户型主要有86平-99平的明卫,双阳台的三居 、68平-88平的明卫的二居 、38平-38平的明厨的一居 。
*获取完整户型报告,同时会有免费语音讲解服务
-
7490元/㎡
本月挂牌均价
-
0.14%
环比上月
买房加房产交流群,省钱不踩雷
3000+人正在热聊
加入群聊
联系业主
免责声明:房源信息由网站用户提供,其真实性、合法性由信息提供者负责,最终以政府部门登记备案为准。本网站不声明或保证内容之正确性和可靠性,购买该房屋时,请谨慎核查。入学情况仅凭历史经验总结,在此不承诺升学事宜。请您在签订合同之前,切勿支付任何形式的费用,以免上当受骗。

