水岸风景 2室2厅 西
-
70万
总价
-
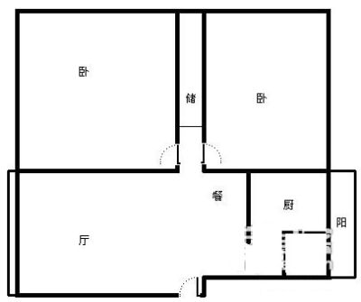
2室2厅
户型
-
93.38㎡
建筑面积
买房加房产交流群,省钱不踩雷
3000+人正在热聊
加入群聊
-
单价
7497元/平米
- 挂牌价格解析
-
楼层
低楼层/6层
- 咨询楼层
-
套内
暂无数据
- 咨询套内使用面积
-
楼型
板楼
-
朝向
西
-
装修
简装
-
供暖
暂无数据
-
年代
2000
-
发布
2025-09-04
-
地铁
距3号线石油大学站约848米
-
咨询总首付
首付约17.6万
首付税费及佣金情况 -
深度测评
小区水岸风景(新都-新都老城)
-
更多
楼户比、楼层高度、交易历史、抵押信息
-
核验码
20251898626
周边配套
地址:清源路139号
交通综合评分
查看全部7.9
“较好”
超过成都33.7%的小区
-
地铁公交
10.0
-
驾车出行
9.0
-
城际交通
4.0
本月均价 7459元/m²
环比上月 上涨 0.79%
同比去年 上涨 0.45%
猜你喜欢
同小区其它房源
户型齐全,主打户型方正,明厨,明卫,客厅朝南,全明格局,双阳台,双卧朝南三居
水岸风景户型主要有127平-136平的户型方正,明厨,明卫,客厅朝南,全明格局,双阳台,双卧朝南的三居 、87平-93平的户型方正,客厅朝南的二居 、142平-207平的户型方正,明卫,明厨,客厅朝南,全明格局,主卧朝南的四居 。
*获取完整户型报告,同时会有免费语音讲解服务
-
6295元/㎡
本月挂牌均价
-
0.35%
环比上月
买房加房产交流群,省钱不踩雷
3000+人正在热聊
加入群聊
免责声明:房源信息由网站用户提供,其真实性、合法性由信息提供者负责,最终以政府部门登记备案为准。本网站不声明或保证内容之正确性和可靠性,购买该房屋时,请谨慎核查。入学情况仅凭历史经验总结,在此不承诺升学事宜。请您在签订合同之前,切勿支付任何形式的费用,以免上当受骗。



