新上!大端户带电梯井!南北通透!三面采光!中庭安静位置!
-
1100万
总价
-
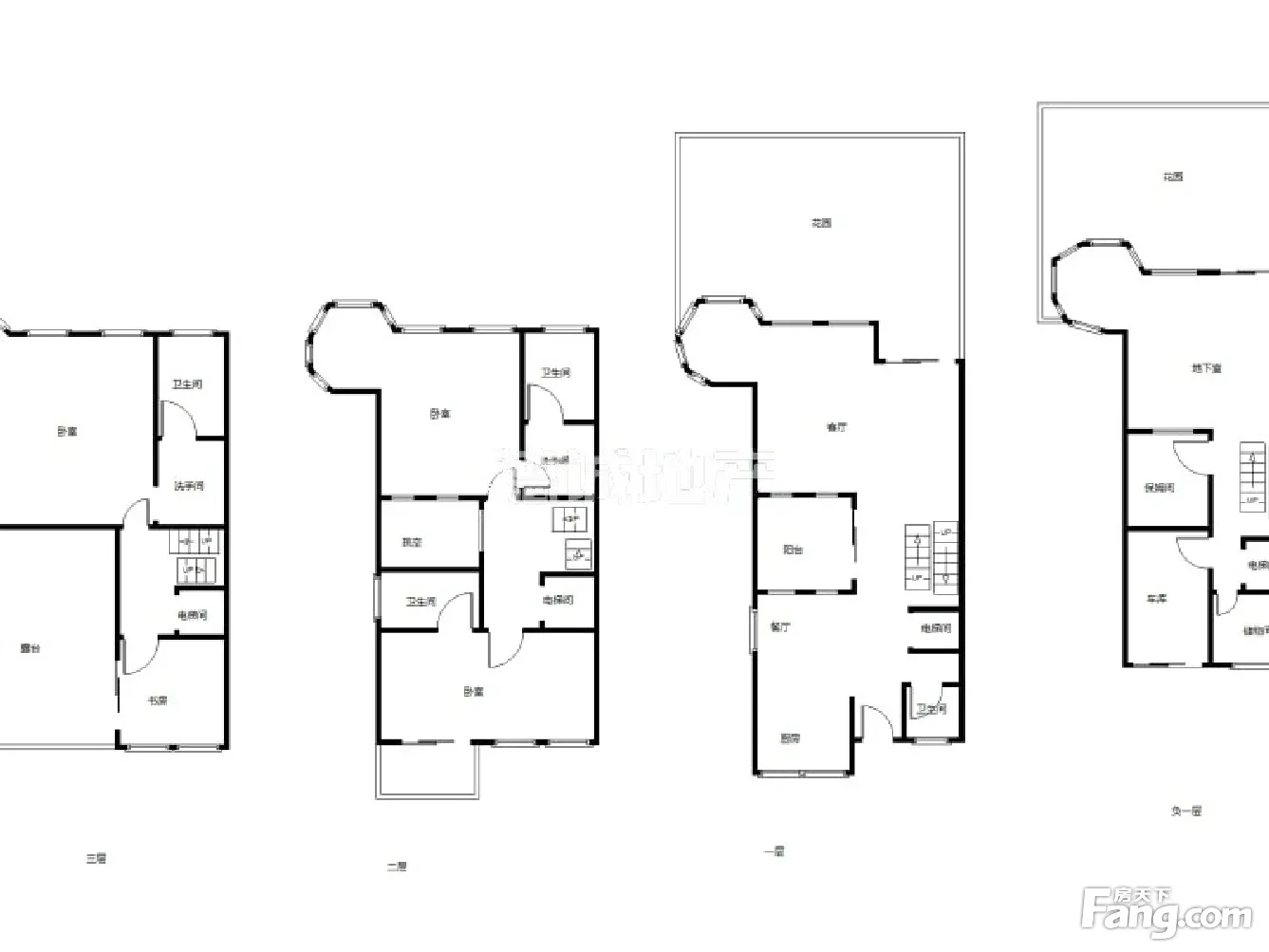
4室3厅4卫
户型
-
453.5㎡
建筑面积
买房加房产交流群,省钱不踩雷
3000+人正在热聊
-
单价
24256元/平米
- 挂牌价格解析
-
楼层
底层/4层
- 咨询楼层
-
套内
452.5㎡
- 咨询套内使用面积
-
楼型
板楼
-
朝向
南
-
装修
精装修
-
年代
2011
-
发布
2025-12-03
-
地铁
距5号线骑龙站约712米
-
咨询总首付
首付约330.9万
首付税费及佣金情况 -
深度测评
小区欧香小镇(天府新区-华阳)
-
更多
楼户比、楼层高度、交易历史、抵押信息
-
核验详情
核验码20251796145
房源描述(1)
-
核心卖点问经纪人
核心 房源简介: 1、组团名称:欧香小镇 2、面积:518室3厅4卫 4、装修情况:清水 5、位置:西区端头 6、看房:方便 7、亮点:端头位置 带电梯井 诚心出售!
-
业主心态问经纪人
业主心态 因业主长期在外地 没时间打理此房 现诚心出售 看房方便
-
小区配套问经纪人
小区地理位置佳,绿化环境优越整洁,居民素质高,物业管理完善,适宜居住
-
服务介绍问经纪人
个人宣言:用专业的打造完.美的体验,因专业产生效率!一次成交,一生朋友! 专业: 为您选房→配房→带您看房→满意→付意向→转定→签合同→首付→陪同贷款→交易过户→新产证→放贷→交房(水电煤过户)
-
税费分析房贷计算
关于本房的税费信息情况,请电话联系我,我将详细的为您讲解!
周边配套
交通综合评分
查看全部超过成都47.8%的小区
-
地铁公交
9.0
-
驾车出行
10.0
本月均价 19855元/m²
环比上月 下跌 0.61%
同比去年 下跌 1.96%
猜你喜欢
同小区其它房源
-
11328元/㎡
本月挂牌均价
-
0.63%
环比上月
买房加房产交流群,省钱不踩雷
3000+人正在热聊
- 免费咨询
- 专业服务
- 区域解读
- 户型分析


