豪宅急卖,欧香小镇别墅 联排中户 5室2厅带电梯 朝南精装修
-
1090万
总价
-
5室2厅5卫
户型
-
454㎡
建筑面积
买房加房产交流群,省钱不踩雷
3000+人正在热聊
加入群聊
-
单价
24009元/平米
- 挂牌价格解析
-
楼层
3层
- 咨询楼层
-
套内
404.06㎡
- 咨询套内使用面积
-
楼型
联排
-
朝向
南
-
装修
精装修
-
年代
2015
-
发布
2024-11-26
-
地铁
距5号线骑龙站约712米
-
咨询总首付
首付约328.2万
首付税费及佣金情况 -
深度测评
小区欧香小镇别墅(天府新区-华阳)
-
更多
楼户比、楼层高度、交易历史、抵押信息
-
核验详情
核验码20230440934
房源描述(1)
-
核心卖点问经纪人
业主,出国卖房,精装修保养好,带家用电梯,5个房间,有采光天井和顶楼,房子全屋地暖和空调,热水器循环热水,自己装修的用才扎实,朝南的
-
业主心态问经纪人
业主资金周转,很爱惜自己房子,精心设计,诚意出售,本人一直在维护,方便看房,价到业主签约
-
小区配套问经纪人
小区地理位置好,配套设施齐全,交通便利,居民素质高。
-
服务介绍问经纪人
专注大源板块【辰邦地产 孙大平】 专注 二手房 大平层 洋房别墅 商铺写字楼等 专注城南:感恩.真诚.用心.专业.如果你对此房满意,可以随时电话了解。 欢迎点击本人店铺,更多房源,诚信做事.
-
税费分析房贷计算
产权干净,税费清晰,欢迎来电咨询该房屋详情,静候您的来电!
-
户型解读问经纪人
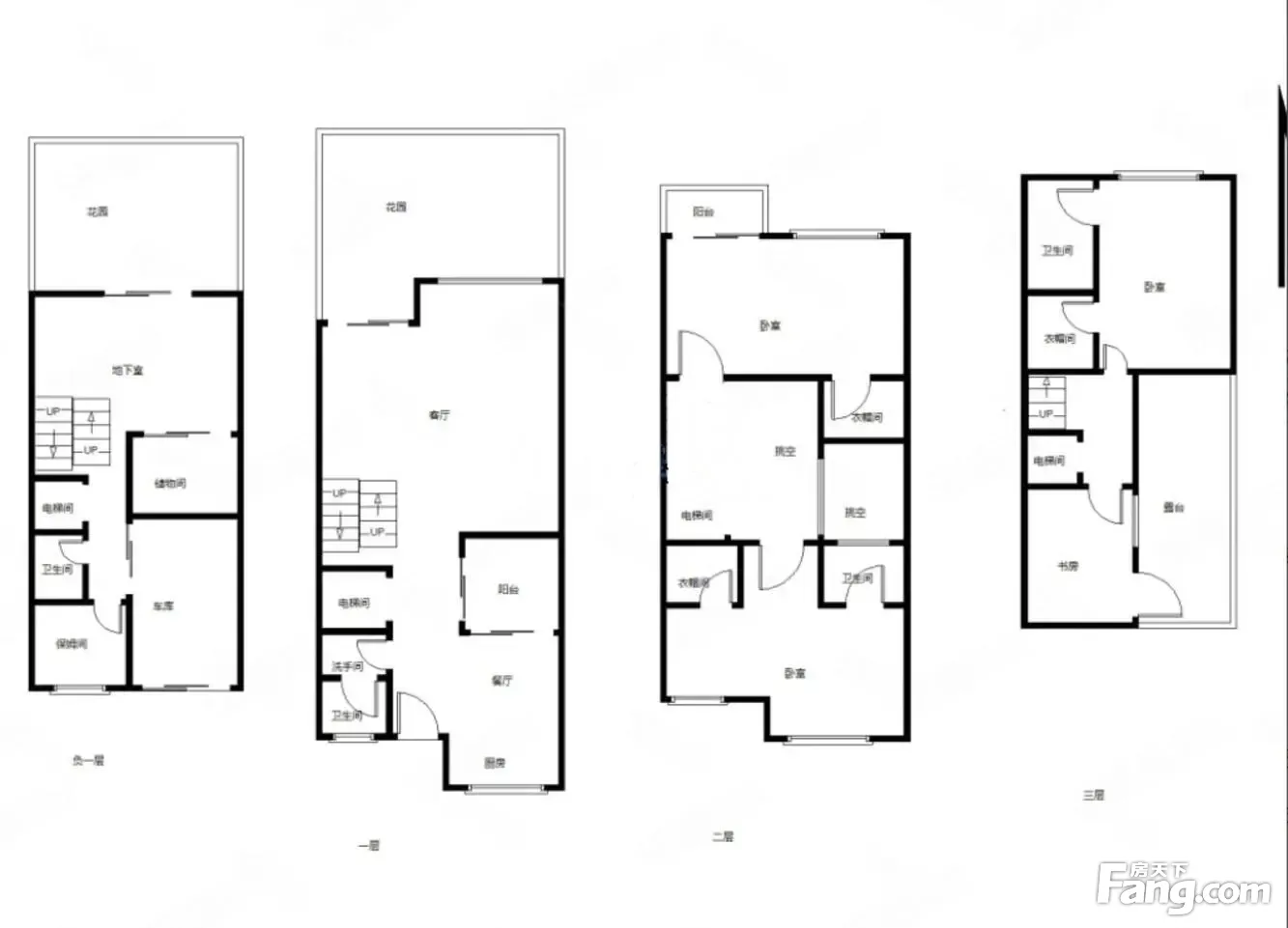
房屋户型方正,景观布局合理,设计实用,空间舒适,格局优越,采光通风良好
周边配套
地址:剑南大道南段669号
交通综合评分
查看全部6.6
“较好”
超过成都47.8%的小区
-
地铁公交
9.0
-
驾车出行
10.0
户型齐全,主打独立车库,入户花园,主卧带卫,户型方正四居
欧香小镇别墅户型主要有186平-517平的独立车库,入户花园,主卧带卫,户型方正的四居 、137平-287平的南北通透,主卧带卫,户型方正的三居 。
*获取完整户型报告,同时会有免费语音讲解服务
-
11247元/㎡
本月挂牌均价
-
0.41%
环比上月
买房加房产交流群,省钱不踩雷
3000+人正在热聊
加入群聊
- 免费咨询
- 专业服务
- 区域解读
- 户型分析
免责声明:房源信息由网站用户提供,其真实性、合法性由信息提供者负责,最终以政府部门登记备案为准。本网站不声明或保证内容之正确性和可靠性,购买该房屋时,请谨慎核查。入学情况仅凭历史经验总结,在此不承诺升学事宜。请您在签订合同之前,切勿支付任何形式的费用,以免上当受骗。


