高新区新川科技园地铁六旁边就是新川之心公园精装套四
-
470万
总价
-
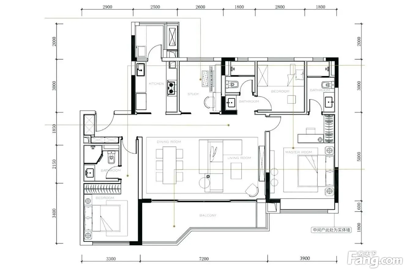
4室2厅3卫
户型
-
143㎡
建筑面积
买房加房产交流群,省钱不踩雷
3000+人正在热聊
-
单价
32867元/平米
- 挂牌价格解析
-
楼层
底层/1层
- 咨询楼层
-
套内
125.84㎡
- 咨询套内使用面积
-
楼型
砖楼
-
朝向
南
-
装修
精装修
-
年代
2000
-
发布
2024-08-30
-
地铁
距1号线(五根松-韦家碾)五根松站约560米
-
咨询总首付
首付约121.6万
首付税费及佣金情况 -
深度测评
小区中海新川华府(高新-麓山)
-
更多
楼户比、楼层高度、交易历史、抵押信息
房源描述(1)
-
核心卖点问经纪人
天府新区:锦江生态带板块,麓山板块,麓湖生态城,秦皇寺商务区,天东,天西以及兴隆湖板块! 双流区:怡心湖,华府,双流主城区,东升板块! 高新区:金融城,软件园,锦城湖,大源,新川科技园! 均有房源出售
-
业主心态问经纪人
房东置换,诚心出售,欢迎看房,随时恭候您的到来!
-
小区配套问经纪人
小区居民素质高,配套设施齐全,地理位置好,交通便利。
-
服务介绍问经纪人
1、以我的专业服务,换您的满意微笑。 2、集众房之所特,揽众价之所低。 3、我们心中永远,都有他们想要的家。 4、诚实守信,为您服务,解疑释惑,安居乐业。 5、专业,真实,优惠,真诚。 6
-
税费分析房贷计算
产权干净,税费清晰,欢迎来电咨询该房屋详情,静候您的来电!
周边配套
本月均价 33017元/m²
环比上月 下跌 0.17%
同比去年 上涨 65.48%
猜你喜欢
同小区其它房源
户型齐全,主打户型方正,动静分离四居
中海新川华府户型主要有139平-143平的户型方正,动静分离的四居 、117平-132平的户型方正,动静分离的三居 。
*获取完整户型报告,同时会有免费语音讲解服务
买房加房产交流群,省钱不踩雷
3000+人正在热聊
- 免费咨询
- 专业服务
- 区域解读
- 户型分析

