天府公园西 精装大平层 招商品质 纯改善住宅 大套四
-
472万
总价
-
4室2厅2卫
户型
-
143㎡
建筑面积
买房加房产交流群,省钱不踩雷
3000+人正在热聊
-
单价
33007元/平米
- 挂牌价格解析
-
楼层
底层/1层
- 咨询楼层
-
套内
125.84㎡
- 咨询套内使用面积
-
楼型
砖楼
-
朝向
南
-
装修
精装修
-
年代
2000
-
发布
2024-08-30
-
地铁
距19号线红莲站约212米
-
咨询总首付
首付约117.4万
首付税费及佣金情况 -
深度测评
小区招商时代公园(天府新区-华阳)
-
更多
楼户比、楼层高度、交易历史、抵押信息
房源描述(1)
-
核心卖点问经纪人
招商时代公园 标题:招商时代公园天西花园城双TOD人字绿廊 ?面/繁华之上的城市公园 在招商时代公园,近享约3450亩天府公园。 ?线/步行可达的缎带公园 在招商时代公园,漫步交织的缎带公园。由全球景观设计单位SWA操刀,整体规划达约2160米、平均宽度达95米的人字绿廊,为“遥望西岭雪山和龙泉山脉的自然风光”而设计,连接一园两河,发挥海绵城市、碳汇森林、生态风廊三大作用,延展开来更细密的缎带绿道,则将城市功能与大型公园相连,让“人均绿地可达率”降低至300米内。 ?点/根植于生活的社交公园 在招商时代公园,参与建筑间生长的点状公园。首先,充分利用城市土地间的“金角
-
业主心态问经纪人
业主诚心出售此房,没有产权纠纷,业主素质较高,房价合理且可议价,欢迎随时看房
-
小区配套问经纪人
小区居民素质高,配套设施齐全,地理位置好,交通便利。
-
服务介绍问经纪人
愿景:互相成就,成为豪宅经纪人领头羊! 理念:为这座城市10%的塔尖人群提供专业深度的资产配置服务。 服务至上 诚信正直 和谐共生 持续精进
-
税费分析房贷计算
产权干净,税费清晰,欢迎来电咨询该房屋详情,静候您的来电!
周边配套
交通综合评分
查看全部超过成都0.0%的小区
-
地铁公交
10.0
本月均价 36295元/m²
环比上月 上涨 1.14%
同比去年 上涨 7.72%
猜你喜欢
同小区其它房源
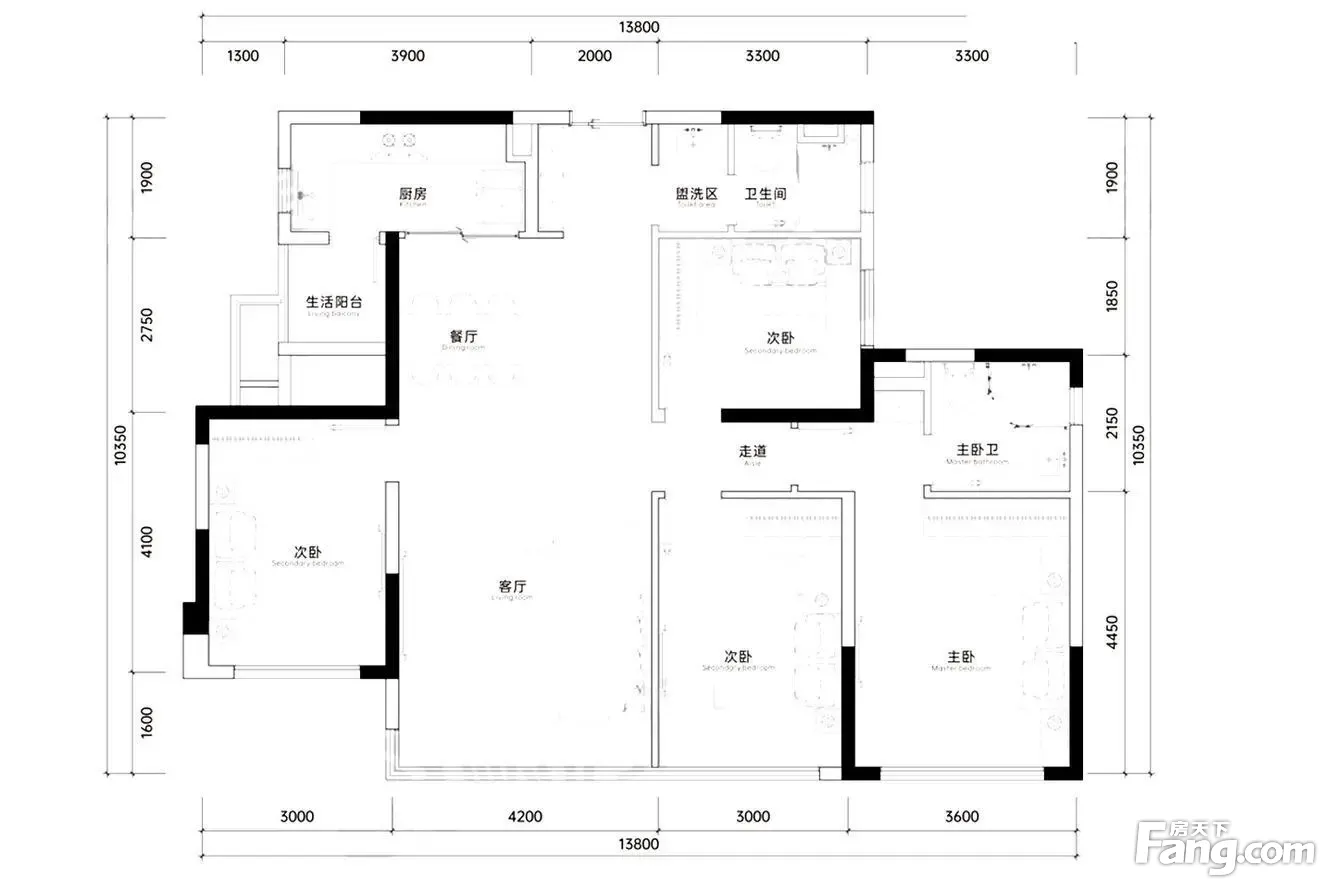
户型齐全,主打南北通透,主卧套间,大面宽阳台四居
招商时代公园 天樾境户型主要有153平-236平的南北通透,主卧套间,大面宽阳台的四居 、142平-142平的户型方正,客厅朝南,主卧朝南,大面宽阳台的三居 。
*获取完整户型报告,同时会有免费语音讲解服务
-
11247元/㎡
本月挂牌均价
-
0.41%
环比上月
买房加房产交流群,省钱不踩雷
3000+人正在热聊
- 免费咨询
- 专业服务
- 区域解读
- 户型分析

