蓝润V客东都1室1卫南朝向18.80万元/套出售
-
18.8万
总价
-
1室1卫
户型
-
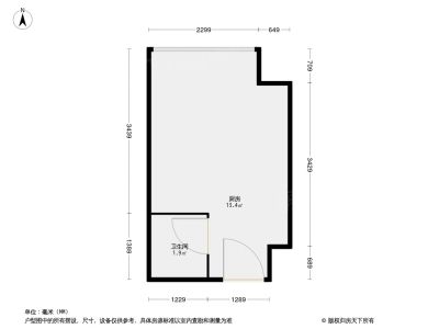
23.31㎡
建筑面积
买房加房产交流群,省钱不踩雷
3000+人正在热聊
加入群聊
-
单价
8065元/平米
- 挂牌价格解析
-
楼层
中层/37层
- 咨询楼层
-
套内
暂无数据
- 咨询套内使用面积
-
朝向
南
-
发布
2025-10-22
-
地铁
距2号线洪河站约945米
-
咨询总首付
首付约5.9万
首付税费及佣金情况 -
深度测评
小区蓝润V客东都(锦江-三圣乡)
-
更多
楼户比、楼层高度、交易历史、抵押信息
业主自评
-
壹间居室
加入房天下4552天
接电时间:09:00-22:00
周边配套
地址:三圣乡地铁2号线洪河站点
交通综合评分
查看全部8.2
“较好”
超过成都57.9%的小区
-
地铁公交
10.0
-
驾车出行
10.0
-
城际交通
4.0
本月均价 16993元/m²
环比上月 下跌 2.91%
同比去年 下跌 8.68%
猜你喜欢
同小区其它房源
户型齐全,主打户型方正,客厅朝南,双卧朝南三居
蓝润V客东都户型主要有72平-86平的户型方正,客厅朝南,双卧朝南的三居 、23平-35平的户型方正,明厨的一居 、54平-61平的户型方正,明厨,双卧朝南,主卧朝南的二居 。
*获取完整户型报告,同时会有免费语音讲解服务
-
21106元/㎡
本月挂牌均价
-
0.96%
环比上月
买房加房产交流群,省钱不踩雷
3000+人正在热聊
加入群聊
联系业主
免责声明:房源信息由网站用户提供,其真实性、合法性由信息提供者负责,最终以政府部门登记备案为准。本网站不声明或保证内容之正确性和可靠性,购买该房屋时,请谨慎核查。入学情况仅凭历史经验总结,在此不承诺升学事宜。请您在签订合同之前,切勿支付任何形式的费用,以免上当受骗。

