红山世家2室1厅西南
-
1100万
总价
-
2室1厅1卫
户型
-
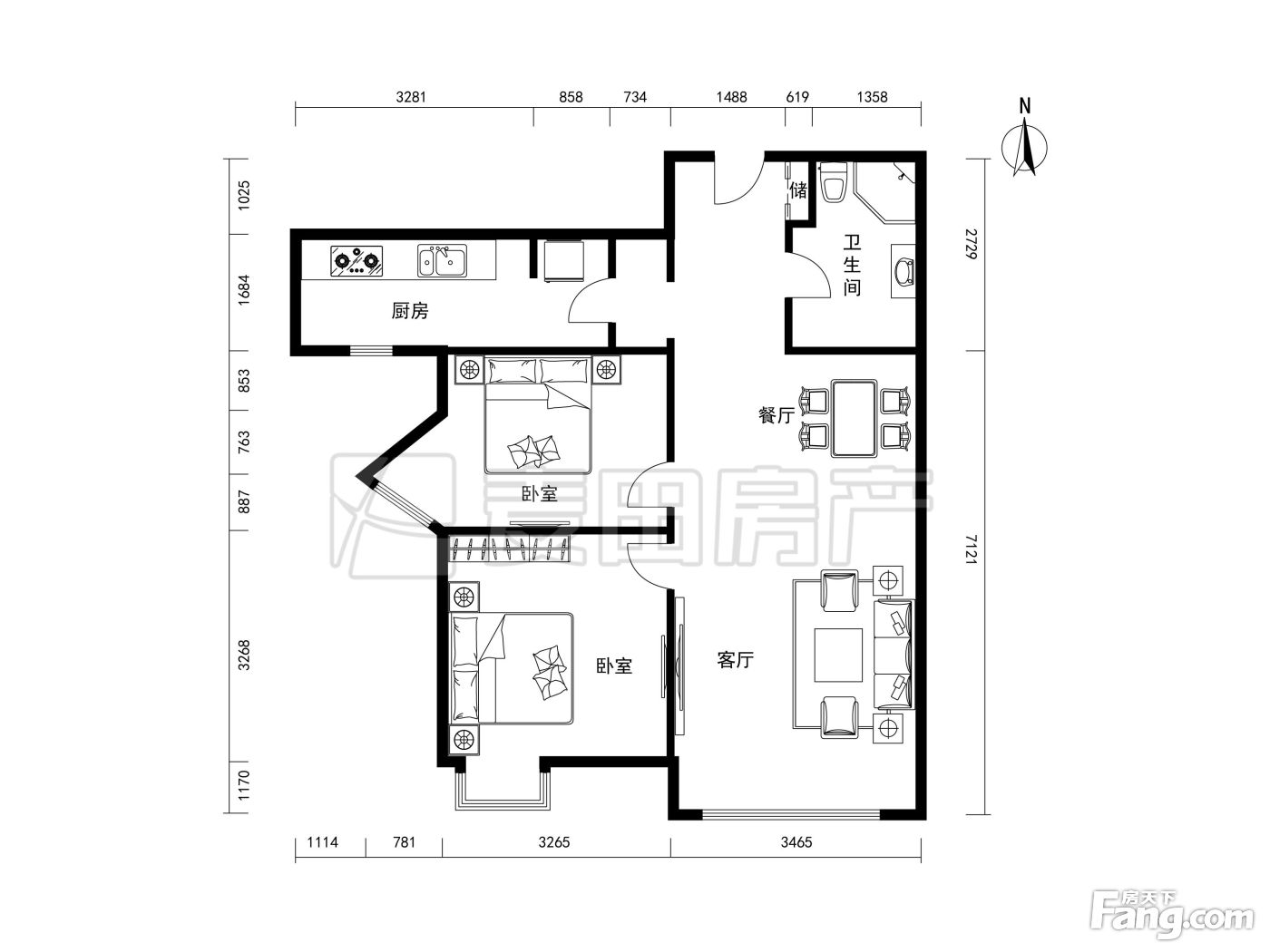
94.44㎡
建筑面积
买房加房产交流群,省钱不踩雷
3000+人正在热聊
-
单价
116477元/平米
- 挂牌价格解析
-
楼层
中楼层/22层
- 咨询楼层
-
套内
72.01㎡
- 咨询套内使用面积
-
楼型
板楼
-
朝向
西南
-
装修
精装
-
供暖
自供暖
-
年代
2009
-
发布
2026-01-27
-
地铁
距7号线达官营站约421米
-
咨询总首付
首付约710万
首付税费及佣金情况 -
深度测评
小区红山世家(西城-广安门)
-
更多
楼户比、楼层高度、交易历史、抵押信息
房源描述(1)
-
核心卖点问经纪人
相信为您推荐的这套房子您一定会满意,赶快行动吧,先到先得! 房屋年代∶2011,面积∶93.93平方米,朝向∶南 1. 小区配备高端物业管理,让你享受宾至如归的服务; 2. 小区人文素质高,是您的居家的绝佳选择; 3. 小区居住安静舒适,让您拥有高品质的生活环境; 4. 小区绿化率高,绿树成荫鸟语花香让您随时呼吸到新鲜空气。
-
小区配套问经纪人
红山世家是一处由(北京)股份有限公司开发的楼盘,紧邻西二环、长安街,金融街、三里河中央政务区、广安门商务办公区三区交汇之地,绵延百年的金融文化,流传千年的古都文明,共同造就今日繁华而又静谧的城市宜居地脉。红山世家是围合友居生活,总规模约22万平米的红山,规划中分为A、B两区,九栋赭石色建筑围合起公寓、主题商业街、多功能会所以及小学、幼儿园。
周边配套
交通综合评分
查看全部超过北京69.2%的小区
-
地铁公交
10.0
-
驾车出行
10.0
-
城际交通
4.5
本月均价 111972元/m²
环比上月 下跌 1.08%
同比去年 下跌 16.16%
猜你喜欢
同小区其它房源
户型齐全,主打客厅朝南一居
红山世家户型主要有37平-182平的客厅朝南的一居 、55平-96平的户型方正,明厨,主卧朝南的二居 、79平-187平的明卫,独立衣帽间,明厨,客厅朝南,双卧朝南的三居 。
*获取完整户型报告,同时会有免费语音讲解服务
-
80831元/㎡
本月挂牌均价
-
1.07%
环比上月
买房加房产交流群,省钱不踩雷
3000+人正在热聊
- 免费咨询
- 专业服务
- 区域解读
- 户型分析

