世贸国际公寓 3室2厅 南 北
-
1920万
总价
-
3室2厅2卫
户型
-
262.02㎡
建筑面积
买房加房产交流群,省钱不踩雷
3000+人正在热聊
-
单价
73277元/平米
- 挂牌价格解析
-
楼层
低楼层/31层
- 咨询楼层
-
套内
218.47㎡
- 咨询套内使用面积
-
楼型
板楼
-
朝向
南北
-
装修
其他
-
供暖
集中供暖
-
年代
2001
-
发布
2025-11-16
-
地铁
距1号线(八通线)永安里站约754米
-
咨询总首付
首付约635.2万
首付税费及佣金情况 -
深度测评
小区世贸国际公寓(朝阳-东大桥)
-
更多
楼户比、楼层高度、交易历史、抵押信息
房源描述(1)
-
核心卖点问经纪人
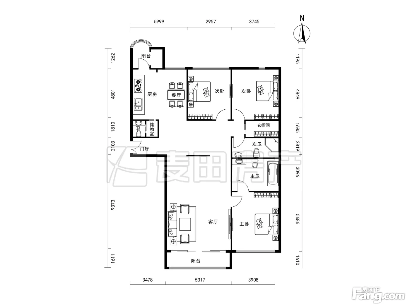
这个房子是目前《世贸国际公寓》位置特别好,性价比非常高的一套南北通透三居室 【房源详情】: (1)、世贸国际公寓是国贸CBD核心,绿化率83%的封闭式社区 (2)、房子面积262平米,83%,套内实际面积约217平米 (3)、房子是南北通透户型,262平米的大3居室,可以改成4居室 (4)、客厅和主卧室朝南向,正对着小区园区内部绿化,采光也好 (5)、2个次卧室和厨房都朝北,厨房和餐厅的面积有约30平米 (6)、经典的南北通透户型格局,正南正北,大客厅,大餐厅
-
业主心态问经纪人
【新房】:我司代理北京近100个新房项目,均可为您介绍,带您看。您通过我司看新房,既“无居间费”,又省去自己找房的麻烦,还可享受一定团购优惠,并有我司第三方保障。 _ 【二手房】:北京核心区(东二环:建国门,东直门,国贸CBD等),豪宅区(东三环:太阳宫,三元桥,朝阳公园等),中端改善区(东四环:四惠,百子湾,青年路等),均是我的主要业务区域。 _ 【买房找对人】:欢迎您告诉我您的购房需求,我尽心尽力为您服务。
-
小区配套问经纪人
【世贸国际简介】: 小区位于国贸CBD核心(东3环内,光华路北侧),紧靠世贸天阶,距国贸三期,中国尊,央视总部,日坛公园等。小区是2002年楼盘,社区环境好,一共由4栋楼组成,占地2.4万平,其中1.6万平水系园区,绿化率60%,封闭式社区, 人车分流。一共639户,主打260平左右3室,180多平2室,少量176平复式和75平开间。房子正南正北,83%,格局方正,浪费少,是国贸十分适宜的人文社区。
-
服务介绍问经纪人
【个人简介】: 我叫戴邹洋,大学本科毕业,于2012年入司,2015年任团队业务经理多年,有丰富的高端房产交易经验。十几年期间,服务过众多高端业主与客户,希望能让您有更好的购房体验。
-
税费分析房贷计算
【二手房主要交易税费】: (1)、值税,增值附加税 (2)、个人所得税 (3)、契税 _ 根据房子的计税指导价不同,原值不同,是否满2年,是否满5年,业主家庭在京是否仅此一套住房,以及买方是首套购房,还是二套购房,以及买方是全款还是贷款,若贷款则需要贷多少......等等信息的不同,而使得每一套房子的税费的多少不一样。 _ 【再次建议您】: (一)、找我司,我司在北京有300多家直营店,主做中高端楼盘,房源丰富且有大平台保障; (二)、找资深有经验的房产经纪人,既懂哪些产品符合您的需求,又让您再所有流程环节中,感觉清晰明了,安全有保障。
周边配套
交通综合评分
查看全部超过北京35.9%的小区
-
地铁公交
10.0
-
驾车出行
10.0
-
城际交通
4.5
本月均价 78655元/m²
环比上月 下跌 2.98%
同比去年 下跌 5.23%
猜你喜欢
同小区其它房源
户型齐全,主打户型方正,明卫,双阳台,主卧朝南三居
世贸国际公寓户型主要有176平-264平的户型方正,明卫,双阳台,主卧朝南的三居 、176平-186平的户型方正的二居 、73平-75平的户型方正的一居 。
*获取完整户型报告,同时会有免费语音讲解服务
-
78428元/㎡
本月挂牌均价
-
持平
环比上月
买房加房产交流群,省钱不踩雷
3000+人正在热聊
- 免费咨询
- 专业服务
- 区域解读
- 户型分析


