阳光上东~美洲,板楼顶层复式,私人露天台,仅一套
-
3650万
总价
-
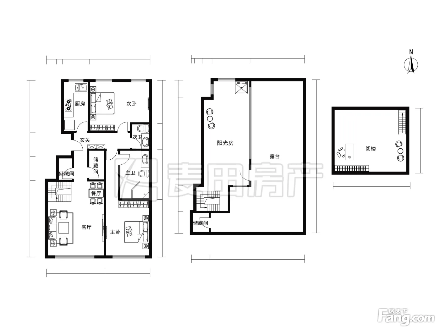
4室2厅2卫
户型
-
210.13㎡
建筑面积
买房加房产交流群,省钱不踩雷
3000+人正在热聊
加入群聊
-
单价
173702元/平米
- 挂牌价格解析
-
楼层
顶层/9层
- 咨询楼层
-
套内
175.31㎡
- 咨询套内使用面积
-
楼型
板楼
-
朝向
南北
-
装修
精装
-
供暖
集中供暖
-
发布
2025-10-08
-
地铁
距14号线东风北桥站约510米
-
咨询总首付
首付约1207.3万
首付税费及佣金情况 -
深度测评
小区阳光上东(朝阳-酒仙桥)
-
更多
楼户比、楼层高度、交易历史、抵押信息
周边配套
地址:东四环北路6号(四环东侧宵云桥东南角)
交通综合评分
查看全部7.0
“较好”
超过北京15.2%的小区
-
地铁公交
10.0
-
驾车出行
10.0
本月均价 82022元/m²
环比上月 上涨 1.47%
同比去年 下跌 3.78%
猜你喜欢
同小区其它房源
户型齐全,主打明卫,明厨,双阳台三居
阳光上东户型主要有143平-315平的明卫,明厨,双阳台的三居 、181平-315平的户型方正,明卫,明厨,双阳台,双卧朝南,主卧朝南的四居 。
*获取完整户型报告,同时会有免费语音讲解服务
-
57241元/㎡
本月挂牌均价
-
1.03%
环比上月
买房加房产交流群,省钱不踩雷
3000+人正在热聊
加入群聊
免责声明:房源信息由网站用户提供,其真实性、合法性由信息提供者负责,最终以政府部门登记备案为准。本网站不声明或保证内容之正确性和可靠性,购买该房屋时,请谨慎核查。入学情况仅凭历史经验总结,在此不承诺升学事宜。请您在签订合同之前,切勿支付任何形式的费用,以免上当受骗。



