裘马都东南北三面采光 落地窗 大面宽 精装修 双通
-
2530万
总价
-
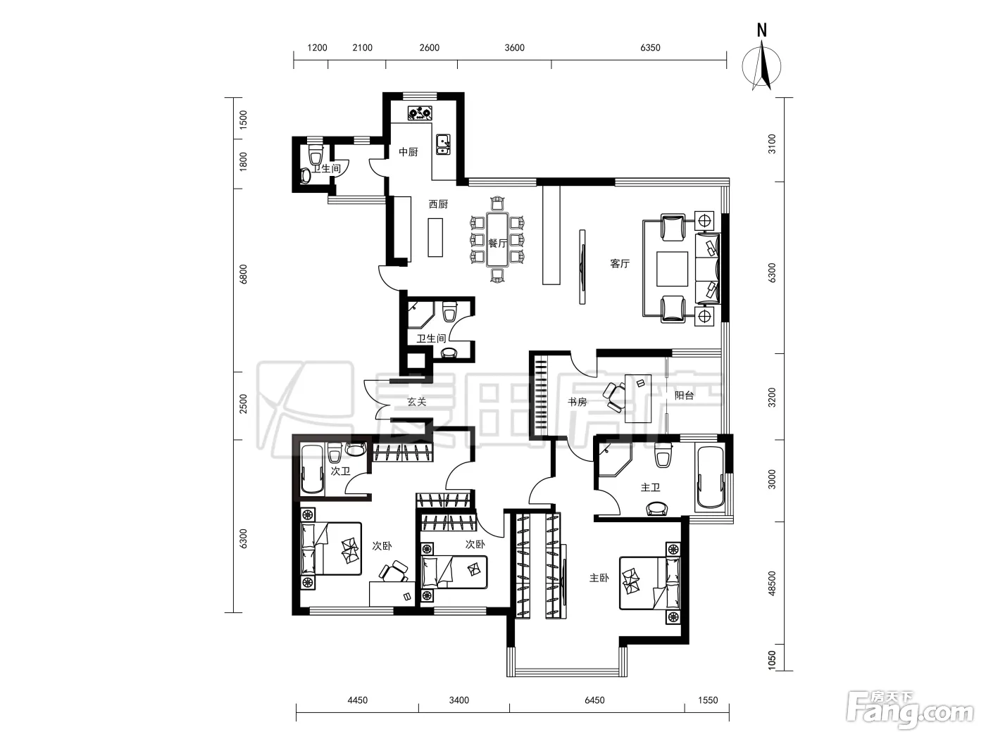
4室2厅
户型
-
291.31㎡
建筑面积
买房加房产交流群,省钱不踩雷
3000+人正在热聊
-
单价
86850元/平米
- 挂牌价格解析
-
楼层
低楼层/24层
- 咨询楼层
-
套内
232.92㎡
- 咨询套内使用面积
-
楼型
板楼
-
朝向
南北
-
装修
简装
-
供暖
集中供暖
-
年代
2005
-
发布
2025-09-20
-
地铁
距10号线三元桥站约575米
-
咨询总首付
首付约837.7万
首付税费及佣金情况 -
深度测评
小区华远裘马都(朝阳-三元桥)
-
更多
楼户比、楼层高度、交易历史、抵押信息
房源描述(4)
-
核心卖点问经纪人
1、属于成熟小区,可购房入户。 2、卧室私密性好,非常温馨,客厅宽敞,非常通风,很高。 3、楼层好,视野好,采光好。 4、看房特别方便,房东诚心出售 。 5、周边配套设施完善
-
业主心态问经纪人
房东置换,诚心出售,欢迎看房,随时恭候您的到来!
-
小区配套问经纪人
低密度社区,以大户型为主 :小区整体占地面积约7.5万平方米,地上建筑面积12.3万平方米,容积率仅为2.5, 密度低,居住舒适。 小区外立面采用干挂石材,灰棕色的用料,低调且不失质感。小区是围合式建筑,9栋楼围绕着小区花园。 小区户型设计偏大,大部分是南北通透四居室,低密度,安静适合居住,适合有一-定经济实力的人群购买。
-
服务介绍问经纪人
我从事房产行业多年,积累了大量的专业知识,也得到了业主、客户的信赖和认可,为您买到合适的房子是我的服务宗旨。
-
税费分析房贷计算
产权干净,税费清晰,欢迎来电咨询该房屋详情,静候您的来电!
-
核心卖点问经纪人
1、属于成熟小区,可购房入户。 2、卧室私密性好,非常温馨,客厅宽敞,非常通风,很高。 3、楼层好,视野好,采光好。 4、看房特别方便,房东诚心出售 。 5、周边配套设施完善
-
业主心态问经纪人
业主诚心出售此房,没有产权纠纷,业主素质较高,房价合理且可议价,欢迎随时看房
-
小区配套问经纪人
小区地理位置好,配套设施齐全,交通便利,居民素质高。
-
服务介绍问经纪人
本人做房产多年,一直本着专业的房产知识,为您服务,我会在短的时间内帮您买好满意的房子,不让您错失任何好房子,更不让您每天为买房的事烦心,欢迎随时拨打我电话。
-
税费分析房贷计算
产权干净,税费清晰,欢迎来电咨询该房屋详情,静候您的来电!
-
核心卖点问经纪人
【认证房】假一罚百,房源编号【MTFY】 欢迎您打开我的帖子,我将以热情的精神为您服务!有意请来电咨询如果您暂时没有浏览到适合您的房源,请点击我的头像查看更多房源! 户型:4室2厅1厨3卫2阳台 面积:292.03 这里卖的不仅是房子,还有温馨。 电话是解决问题的途径,有问题请及时沟通,理解是一切美好的开始! 《服务标准》: 北京公司从事二手房销售已经11年之久,曾为多位房东和客 户提供房产服务!本人本着真诚、实诚的服务标准为您提供房产服 务。并且我深知不差价,让您以合理价格买到真正的好房子! 如果这套不适合您,欢迎您点击我的头像进入店铺,定能找到您想要的房源……
-
业主心态问经纪人
很高兴您能看到此条房源,以下内容十分重要,请您仔细阅读:由于充斥太多的虚假房源,包括(价格.小区.面积.照片)让您浪费了太多的时间,所以为了方便您高效的找房子,我保证我发的房源全部真实有效。如果您是购房,或者想了解当前的行情,请直接联系我。
-
小区配套问经纪人
小区地理位置好,配套设施齐全,交通便利,居民素质高。
-
服务介绍问经纪人
感谢您一直看到这里,我相信您能看到这里也是诚心买房。本人从事房地产多年,踏踏实实做事,稳稳当当做人!为您提供专业的知识,以及后期服务。不是您没有您称心如意的房子!也不是您没有您满意的价格!而是,没有
-
税费分析房贷计算
产权干净,税费清晰,为避免泄露业主信息,欢迎来电咨询了解该房屋详情。
-
户型解读问经纪人
房屋户型方正,景观布局合理,设计实用,空间舒适,格局优越,采光通风良好
-
核心卖点问经纪人
【认证房】假一罚百,房源编号【MTFY】 裘马都 户型:4室2厅1厨3卫2阳台 面积:292.03 朝向:南北通透 房子是小区里经典的户型,没有浪费空间!小区周围可以购物! 我是一名普通的经纪人,很喜欢这份工作,会尽力让您找到自己满意的房源,如果您有需求,欢迎来电,我将努力为您解答问题! (经纪人的我陪伴您轻松置业)本人手机2时在线 真实的照片,真实价格、真实的房源,实际比照片效果要好.源照片真实
-
业主心态问经纪人
很高兴您能看到此条房源,以下内容十分重要,请您仔细阅读:由于充斥太多的虚假房源,包括(价格.小区.面积.照片)让您浪费了太多的时间,所以为了方便您高效的找房子,我保证我发的房源全部真实有效。如果您是购房,或者想了解当前的行情,请直接联系我。
-
小区配套问经纪人
有地铁10号线,正在建设12号线17号线,预计今年年底开通,公交车有939路,平时出行在三环和四环开车也很方便,不常堵车
-
服务介绍问经纪人
【自我介绍】我是经纪人王然,一个热心肠且脚踏实地的女孩,學做事前先學做人,我会用心对待每位客户-维护每栋房子,尽量满足客户需求,并且我了解各种房源交易流程,主做全北京的一手二手的房屋买卖事宜
-
税费分析房贷计算
产权干净,税费清晰,为避免泄露业主信息,欢迎来电咨询了解该房屋详情。
-
户型解读问经纪人
房屋户型方正,景观布局合理,设计实用,空间舒适,格局优越,采光通风良好
周边配套
交通综合评分
查看全部超过北京65.7%的小区
-
地铁公交
10.0
-
驾车出行
10.0
本月均价 90647元/m²
环比上月 下跌 1.66%
同比去年 下跌 6.78%
猜你喜欢
同小区其它房源
户型齐全,主打明卫,客厅朝南一居
华远裘马都户型主要有75平-101平的明卫,客厅朝南的一居 、100平-101平的独立衣帽间,客厅朝南,双卧朝南的二居 、222平-295平的户型方正,明厨,明卫,独立衣帽间,客厅朝南的四居 。
*获取完整户型报告,同时会有免费语音讲解服务
-
67926元/㎡
本月挂牌均价
-
0.62%
环比上月
买房加房产交流群,省钱不踩雷
3000+人正在热聊
- 免费咨询
- 专业服务
- 区域解读
- 户型分析


