天桥南里2室1厅东西
-
538万
总价
-
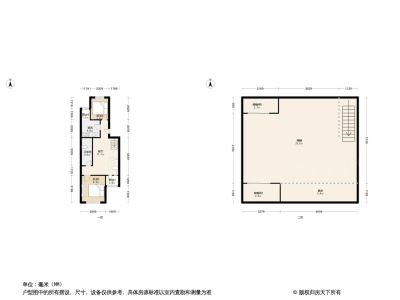
2室1厅1卫
户型
-
70.79㎡
建筑面积
买房加房产交流群,省钱不踩雷
3000+人正在热聊
加入群聊
-
单价
76000元/平米
- 挂牌价格解析
-
楼层
高楼层/7层
- 咨询楼层
-
套内
暂无数据
- 咨询套内使用面积
-
楼型
板塔结合
-
朝向
东西
-
装修
精装
-
供暖
集中供暖
-
年代
2002
-
发布
2025-09-19
-
地铁
距8号线南段天桥站约284米
-
咨询总首付
首付约154.6万
首付税费及佣金情况 -
深度测评
小区天桥南里(西城-天桥)
-
更多
楼户比、楼层高度、交易历史、抵押信息
周边配套
地址:天桥南大街与北纬路交叉口东南
交通综合评分
查看全部5.3
“一般”
超过北京30.4%的小区
-
地铁公交
10.0
-
城际交通
4.5
本月均价 75487元/m²
环比上月 下跌 3.47%
同比去年 下跌 19.51%
猜你喜欢
同小区其它房源
-
95713元/㎡
本月挂牌均价
-
1.46%
环比上月
买房加房产交流群,省钱不踩雷
3000+人正在热聊
加入群聊
免责声明:房源信息由网站用户提供,其真实性、合法性由信息提供者负责,最终以政府部门登记备案为准。本网站不声明或保证内容之正确性和可靠性,购买该房屋时,请谨慎核查。入学情况仅凭历史经验总结,在此不承诺升学事宜。请您在签订合同之前,切勿支付任何形式的费用,以免上当受骗。



