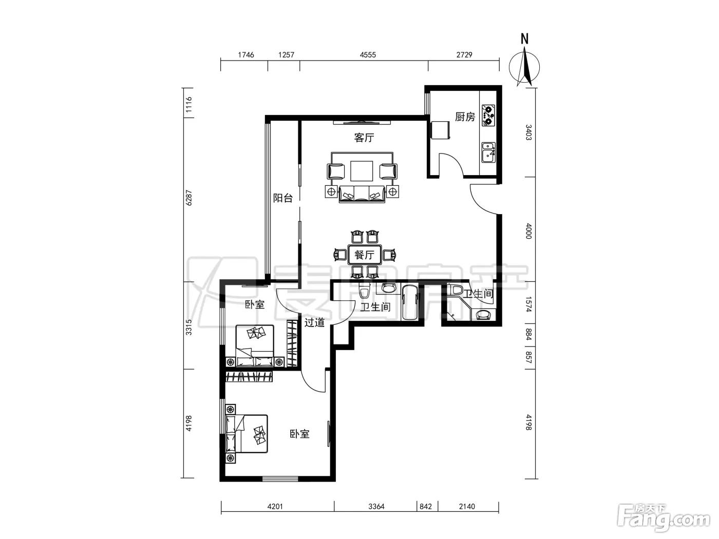
国际友谊花园 2室1厅 西 北
-
808万
总价
-
2室1厅2卫
户型
-
145.98㎡
建筑面积
买房加房产交流群,省钱不踩雷
3000+人正在热聊
-
单价
55351元/平米
- 挂牌价格解析
-
楼层
底层/18层
- 咨询楼层
-
套内
113.65㎡
- 咨询套内使用面积
-
楼型
塔楼
-
朝向
西北
-
装修
其他
-
供暖
集中供暖
-
年代
1997
-
发布
2025-09-17
-
地铁
距17号线左家庄约994米
-
咨询总首付
首付约268万
首付税费及佣金情况 -
深度测评
小区国际友谊花园(朝阳-三元桥)
-
更多
楼户比、楼层高度、交易历史、抵押信息
房源描述(2)
-
核心卖点问经纪人
户型方正,西南大两居,采光好,双卫生间,有燃气可以做饭, 物业费5.48元/平方米/月,民水民电民气,热水20元/吨,小区每年自供暖5个月,暖气费4897元。 小区有游泳池、健身房会所。 相信为您推荐的这套房子您一定会满意,赶快行动吧,先到先得! 房屋年代∶1998年,房屋面积∶145.97平方米, 1. 小区配备良好物业管理,让你享受宾至如归的服务; 2. 小区人文素质高,是您的居家的品质选择; 3. 小区环境安静舒适,让您拥有高品质的生活环境; 4. 小区绿化高,绿树成荫鸟语花香让您随时呼吸到新鲜空气。
-
业主心态问经纪人
业主诚意出售,稳定签约,把房子委托于我,可以随时看
-
小区配套问经纪人
小区是1998年三环内首批批涉外公寓,位于东北三环内内侧,距离三元桥地铁10号线1公里,小区4栋楼,24物业管理,每栋楼都有大堂管家,自带游泳池、网球场、健身房、儿童娱乐室等,环境优雅。
-
服务介绍问经纪人
欢迎大家光临我的店铺!我是来自山西的任宏婷,看过北京很多新房和二手房,买平层、别墅、四合院都可以咨询我,公司全北京的房源都有,您把买房需求告诉我,壹捌伍壹壹玖叁柒贰贰陆,我帮您制定合适的购房方案。
-
税费分析房贷计算
房子满五年,业主名下就一套,成本低税少。
周边配套
交通综合评分
查看全部超过北京73.5%的小区
-
地铁公交
10.0
-
驾车出行
10.0
本月均价 61365元/m²
环比上月 上涨 0.49%
同比去年 下跌 10.02%
猜你喜欢
同小区其它房源
户型齐全,主打户型方正,明厨,主卧朝南二居
国际友谊花园户型主要有83平-152平的户型方正,明厨,主卧朝南的二居 、104平-171平的户型方正,明厨,主卧朝南的三居 、83平-85平的户型方正,独立衣帽间,明厨的一居 。
*获取完整户型报告,同时会有免费语音讲解服务
-
67926元/㎡
本月挂牌均价
-
0.62%
环比上月
买房加房产交流群,省钱不踩雷
3000+人正在热聊
- 免费咨询
- 专业服务
- 区域解读
- 户型分析


