长滩壹号小区满五唯一精装修三居室
-
320万
总价
-
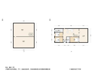
3室1厅1卫
户型
-
92.08㎡
建筑面积
买房加房产交流群,省钱不踩雷
3000+人正在热聊
-
单价
34753元/平米
- 挂牌价格解析
-
楼层
中楼层/10层
- 咨询楼层
-
套内
71.06㎡
- 咨询套内使用面积
-
楼型
板楼
-
朝向
南北
-
装修
简装
-
供暖
集中供暖
-
年代
2010
-
发布
2025-09-14
-
咨询总首付
首付约91.7万
首付税费及佣金情况 -
深度测评
小区融创长滩壹号(昌平-昌平县城)
-
更多
楼户比、楼层高度、交易历史、抵押信息
房源描述(2)
-
核心卖点问经纪人
核心此房,南北通透格局,户型方正。小区人车分流。 小区介绍小区由洋房和叠拼别墅组成,人车分流,小区环境优美静谧,融创物业公司公认的负责,每家都有物业专属管家贴心服务,24h管家化管理。小区环境挺好的,推窗见绿听鸟鸣,楼间曲径通幽。 户型介绍2013年小区,户型很方正,使用面积大,使用率高,纯人车分流,对老人和小朋友很友好。 周边配套有昌平新城滨河森林公园,南邵地铁站,北郡,清华附属一贯制,路劲世界广场,生活很便利。 交通出行小区西临南丰路,可以从南侧的怀昌路直上G6京藏高速,开车出行比较方便。离小区最近的地铁站地铁南邵站,步行距离约2.2公里,可由此搭乘昌平线。距离小区最近的公交站为景文屯南站,可搭乘公交643路、C104路、昌66路等,交通比较便利。
-
业主心态问经纪人
房东置换,诚心出售,可以再谈,欢迎看房,随时恭候。
-
小区配套问经纪人
小区地理位置佳,绿化环境优越整洁,居民素质高,物业管理完善,适宜居住
-
服务介绍问经纪人
本人做房产多年,一直本着专业的房产知识,为您服务,我会在短的时间内帮您买好满意的房子,不让您错失任何好房子,更不让您每天为买房的事烦心,欢迎随时拨打我电话。
-
税费分析房贷计算
关于本房的税费信息情况,请电话联系我,我将详细的为您讲解!
周边配套
交通综合评分
查看全部超过北京41.4%的小区
-
地铁公交
8.0
-
驾车出行
10.0
本月均价 42510元/m²
环比上月 下跌 2.73%
同比去年 下跌 13.23%
猜你喜欢
同小区其它房源
户型齐全,主打户型方正三居
融创长滩壹号户型主要有92平-187平的户型方正的三居 、113平-312平的户型方正,明厨的四居 、86平-98平的户型方正,独立衣帽间的二居 。
*获取完整户型报告,同时会有免费语音讲解服务
-
27778元/㎡
本月挂牌均价
-
1.25%
环比上月
买房加房产交流群,省钱不踩雷
3000+人正在热聊
- 免费咨询
- 专业服务
- 区域解读
- 户型分析


