果园西里 2室2厅 南 北
-
165万
总价
-
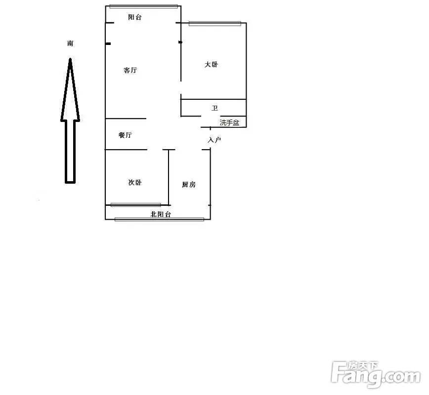
2室2厅
户型
-
99.38㎡
建筑面积
买房加房产交流群,省钱不踩雷
3000+人正在热聊
-
单价
16603元/平米
- 挂牌价格解析
-
楼层
底层/6层
- 咨询楼层
-
套内
暂无数据
- 咨询套内使用面积
-
楼型
板楼
-
朝向
南北
-
装修
简装
-
供暖
集中供暖
-
年代
1981
-
发布
2025-08-17
-
咨询总首付
首付约47.4万
首付税费及佣金情况 -
深度测评
小区果园西里(密云-密云果园)
-
更多
楼户比、楼层高度、交易历史、抵押信息
房源描述(1)
-
核心卖点问经纪人
相信为您推荐的这套房子您一定会满意,赶快行动吧,先到先得! 房屋年代∶2000,面积∶99.38平方米,朝向∶南北 1. 小区配备高端物业管理,让你享受宾至如归的服务; 2. 小区人文素质高,是您的居家的绝佳选择; 3. 小区居住安静舒适,让您拥有高品质的生活环境; 4. 小区绿化率高,绿树成荫鸟语花香让您随时呼吸到新鲜空气。
周边配套
交通综合评分
查看全部超过北京72.7%的小区
-
地铁公交
5.0
-
驾车出行
9.0
本月均价 15980元/m²
环比上月 下跌 0.43%
同比去年 下跌 10.93%
猜你喜欢
同小区其它房源
户型齐全,主打户型方正,客厅朝南,主卧朝南二居
果园西里户型主要有63平-89平的户型方正,客厅朝南,主卧朝南的二居 、91平-127平的户型方正,独立衣帽间,客厅朝南,双阳台,主卧朝南的三居 。
*获取完整户型报告,同时会有免费语音讲解服务
-
20134元/㎡
本月挂牌均价
-
0.49%
环比上月
买房加房产交流群,省钱不踩雷
3000+人正在热聊
- 免费咨询
- 专业服务
- 区域解读
- 户型分析


