南礼士路三条北里2室1厅南北
-
760万
总价
-
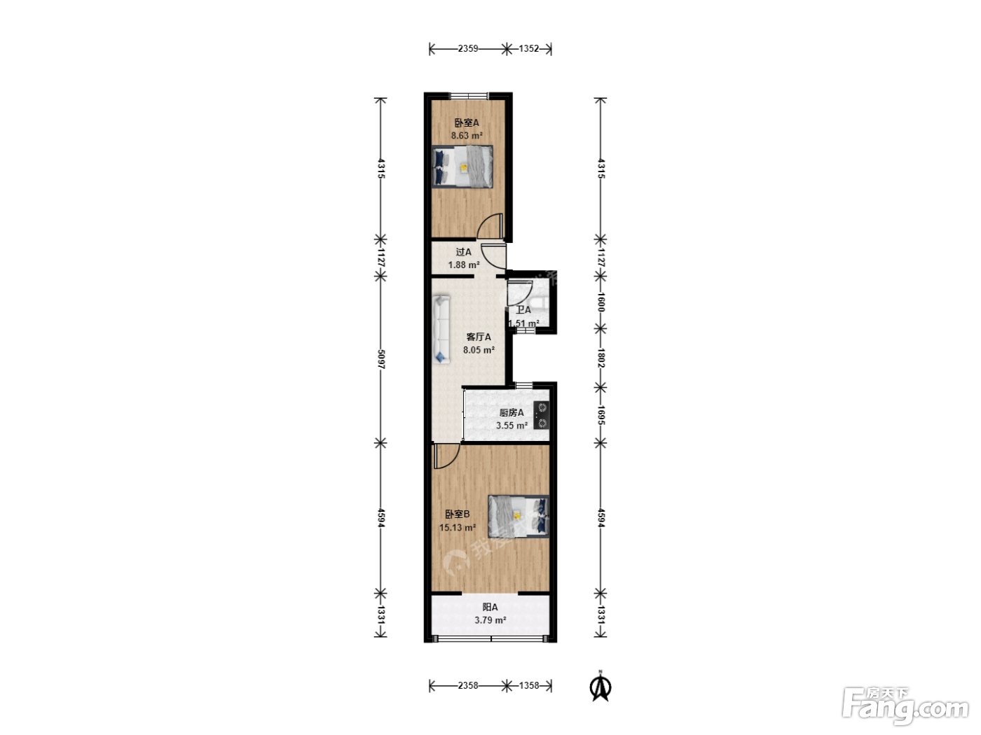
2室1厅1卫
户型
-
58.3㎡
建筑面积
买房加房产交流群,省钱不踩雷
3000+人正在热聊
加入群聊
-
单价
130361元/平米
- 挂牌价格解析
-
楼层
低楼层/6层
- 咨询楼层
-
套内
暂无数据
- 咨询套内使用面积
-
楼型
板楼
-
朝向
南北
-
装修
其他
-
供暖
集中供暖
-
年代
1953
-
发布
2025-07-19
-
地铁
距1号线(八通线)南礼士路站约595米
-
咨询总首付
首付约394.6万
首付税费及佣金情况 -
深度测评
小区南礼士路三条(西城-月坛)
-
更多
楼户比、楼层高度、交易历史、抵押信息
周边配套
地址:复兴门外大街南礼士路三条
交通综合评分
查看全部8.0
“较好”
超过北京45.9%的小区
-
地铁公交
10.0
-
驾车出行
9.0
-
城际交通
4.5
本月均价 123691元/m²
环比上月 上涨 0.12%
同比去年 下跌 6.61%
猜你喜欢
同小区其它房源
户型齐全,主打明厨二居
南礼士路三条户型主要有38平-121平的明厨的二居 、57平-127平的明厨,独立衣帽间,双阳台的三居 、34平-56平的户型方正,明厨,明卫,客厅朝南的一居 。
*获取完整户型报告,同时会有免费语音讲解服务
-
118513元/㎡
本月挂牌均价
-
1.65%
环比上月
买房加房产交流群,省钱不踩雷
3000+人正在热聊
加入群聊
免责声明:房源信息由网站用户提供,其真实性、合法性由信息提供者负责,最终以政府部门登记备案为准。本网站不声明或保证内容之正确性和可靠性,购买该房屋时,请谨慎核查。入学情况仅凭历史经验总结,在此不承诺升学事宜。请您在签订合同之前,切勿支付任何形式的费用,以免上当受骗。



