长椿街有色金属家属院,南北通透二居室,感化胡同,近地铁和公园
-
599万
总价
-
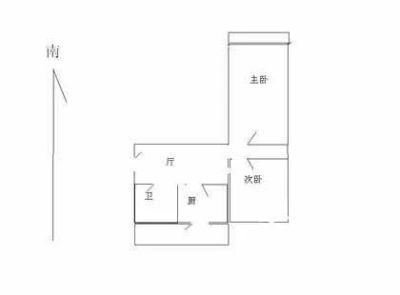
2室1厅1卫
户型
-
69.28㎡
建筑面积
买房加房产交流群,省钱不踩雷
3000+人正在热聊
加入群聊
-
单价
86461元/平米
- 挂牌价格解析
-
楼层
顶层/6层
- 咨询楼层
-
套内
暂无数据
- 咨询套内使用面积
-
楼型
板楼
-
朝向
南北
-
装修
简装
-
供暖
集中供暖
-
年代
1992
-
发布
2023-10-07
-
地铁
距19号线牛街站约628米
-
咨询总首付
首付约206.7万
首付税费及佣金情况 -
深度测评
小区长椿街感化胡同(西城-长椿街)
-
更多
楼户比、楼层高度、交易历史、抵押信息
周边配套
地址:长椿街东侧感化胡同
交通综合评分
查看全部7.7
“较好”
超过北京7.2%的小区
-
地铁公交
10.0
-
驾车出行
8.0
-
城际交通
4.5
本月均价 87528元/m²
环比上月 下跌 1.07%
同比去年 下跌 15.94%
猜你喜欢
同小区其它房源
户型齐全,主打明厨,双卧朝南二居
长椿街感化胡同户型主要有18平-63平的明厨,双卧朝南的二居 、60平-83平的户型方正,明卫,明厨,主卧朝南的三居 、44平-44平的户型方正,明厨,主卧朝南的一居 。
*获取完整户型报告,同时会有免费语音讲解服务
-
97071元/㎡
本月挂牌均价
-
1.64%
环比上月
买房加房产交流群,省钱不踩雷
3000+人正在热聊
加入群聊
免责声明:房源信息由网站用户提供,其真实性、合法性由信息提供者负责,最终以政府部门登记备案为准。本网站不声明或保证内容之正确性和可靠性,购买该房屋时,请谨慎核查。入学情况仅凭历史经验总结,在此不承诺升学事宜。请您在签订合同之前,切勿支付任何形式的费用,以免上当受骗。



